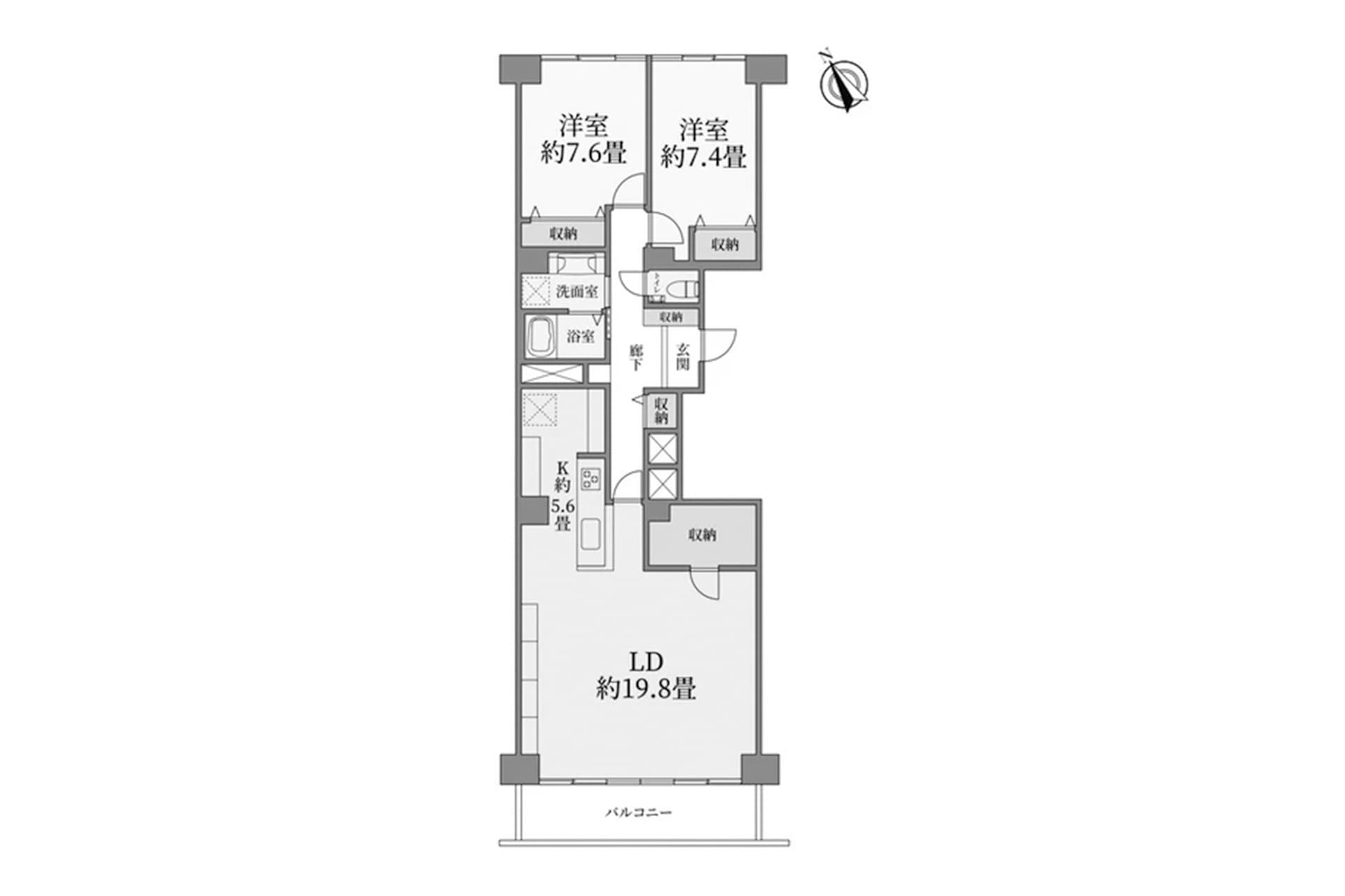
Nestled near the serene streets of Kamimoge, this 2LDK residence offers a rare blend of comfort and convenience. Situated on the 6th floor, the southwest-facing unit bathes in natural sunlight, filling the spacious living and dining area with warmth. A thoughtfully designed LDK features large storage and adaptable shelving, perfect for a remote workspace or creative corner. The neighborhood itself is beloved for its quiet, family-friendly atmosphere, with easy access to Upanoge Station, parks, and local cafes. From the balcony, savor unobstructed views, including the spectacular Tama River fireworks at the Kawasaki venue—a seasonal delight for residents.
Listed by Tokyo Portfolio • Acting as intermediary
Listing updated: 2025-11-16
Around This Property
Kaminoge
6 min walk
- Oimachi
St. Mary's International School
Ages 5-16 years | Walk 3 mins by foot
Payment Calculator

Property Price
Interest rate
The average interest rate for a 35-year fixed loan is 1.368%, while the average variable interest rate is 0.470%.
Loan term
Down payment (20%)¥0
Estimated closing fees (5-8%)
¥4,490,000 – ¥7,184,000
↳ Commission (3.3%) + ¥66,000¥3,029,400
TOTAL DUE AT CLOSE
¥4,490,000 – ¥7,184,000| Down payment (20%) | ¥0 |
| Estimated closing fees (5-8%) ↳ Commission (3.3%) + ¥66,000 | ¥4,490,000 – ¥7,184,000 ¥3,029,400 |
| TOTAL DUE AT CLOSE | ¥4,490,000 – ¥7,184,000 |
|---|
As some of these numbers are calculated using the government-assessed value of the property, the actual total upfront cost cannot be known. Generally speaking, we recommend clients prepare an additional 5–8% on top of the list price.
See here for more details
This property is listed by Tokyo Portfolio.
Phone: +81 (0)3-5447-8700
Address: 5-15-12 Minami-azabu, Minato-ku, Tokyo
License number: Governor of Tokyo License (1) No. 107013 / Member of the Ibaraki Prefecture Chapter of the All Japan Real Estate Association / Member of the Tokyo Metropolitan Area Real Estate Fair Trading Council














