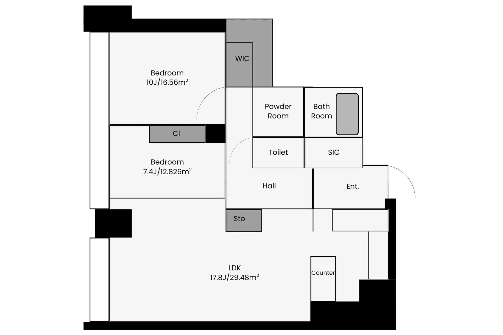
Welcome to unit 2907 at La Tour Chiyoda, where modern living meets comfort. This spacious 93.7 square meter condo features a thoughtful 2LDK layout, complete with a walk-in closet and a storage room, ensuring ample space for your belongings. Perched on the 29th floor, the unit offers breathtaking views and an abundance of natural light, enhancing your daily routine. The open living area seamlessly connects to a cozy balcony, perfect for unwinding after a long day. La Tour Chiyoda provides a range of amenities, including 24-hour security, an elevator, and a delivery box for your convenience. With Kudanshita and Suidobashi stations just a short 5 to 6-minute walk away, commuting is effortless, allowing you to enjoy the vibrant city life at your doorstep. Experience the perfect blend of functionality and comfort in this exceptional apartment.
Listed by Tokyo Portfolio • Acting as intermediary
Listing updated: 2026-03-30
Around This Property
Jimbocho
6 min walk
- Mita
- Shinjuku
- Hanzomon
Suidobashi
6 min walk
- ChuoSobuLocal
- Mita
Floorplan


Payment Calculator
Property Price
Interest rate
The average interest rate for a 35-year fixed loan is 1.368%, while the average variable interest rate is 0.470%.
Loan term
Down payment (20%)¥0
Estimated closing fees (5-8%)
¥27,490,000 – ¥43,984,000
↳ Commission (3.3%) + ¥66,000¥18,209,400
TOTAL DUE AT CLOSE
¥27,490,000 – ¥43,984,000| Down payment (20%) | ¥0 |
| Estimated closing fees (5-8%) ↳ Commission (3.3%) + ¥66,000 | ¥27,490,000 – ¥43,984,000 ¥18,209,400 |
| TOTAL DUE AT CLOSE | ¥27,490,000 – ¥43,984,000 |
|---|
As some of these numbers are calculated using the government-assessed value of the property, the actual total upfront cost cannot be known. Generally speaking, we recommend clients prepare an additional 5–8% on top of the list price.
See here for more details
More Units in This Building

La Tour CHIYODA
2004
Built
1
Units available
This property is listed by Tokyo Portfolio.
Phone: +81 (0)3-5447-8700
Address: 5-15-12 Minami-azabu, Minato-ku, Tokyo
License number: Governor of Tokyo License (1) No. 107013 / Member of the Ibaraki Prefecture Chapter of the All Japan Real Estate Association / Member of the Tokyo Metropolitan Area Real Estate Fair Trading Council











