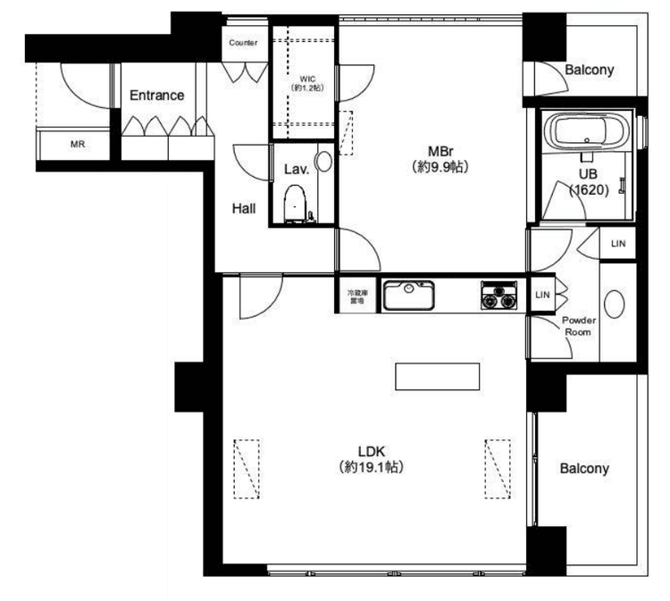
Welcome to unit 602, a spacious 135.28 sqm retreat on the sixth floor, where comfort meets functionality. This thoughtfully designed apartment features a separate bathroom and toilet, ensuring privacy and convenience for daily routines. The modern bidet-toilet adds a touch of luxury to your everyday life. Step out onto your private balcony, perfect for enjoying morning coffee or unwinding in the evening. The generous walk-in closet provides ample storage, keeping your living space organized and clutter-free. With a designated parking space included, you can enjoy the ease of city living without the hassle. Experience a harmonious blend of style and practicality in this inviting apartment.
Listed by Tokyo Portfolio • Acting as intermediary
Listing updated: 2026-02-24
Around This Property
Hanzomon
7 min walk
- Hanzomon
Ichigaya
7 min walk
- ChuoSobuLocal
- Shinjuku
- Namboku
Payment Calculator

Property Price
Interest rate
The average interest rate for a 35-year fixed loan is 1.368%, while the average variable interest rate is 0.470%.
Loan term
Down payment (20%)¥0
Estimated closing fees (5-8%)
¥24,995,000 – ¥39,992,000
↳ Commission (3.3%) + ¥66,000¥16,562,700
TOTAL DUE AT CLOSE
¥24,995,000 – ¥39,992,000| Down payment (20%) | ¥0 |
| Estimated closing fees (5-8%) ↳ Commission (3.3%) + ¥66,000 | ¥24,995,000 – ¥39,992,000 ¥16,562,700 |
| TOTAL DUE AT CLOSE | ¥24,995,000 – ¥39,992,000 |
|---|
As some of these numbers are calculated using the government-assessed value of the property, the actual total upfront cost cannot be known. Generally speaking, we recommend clients prepare an additional 5–8% on top of the list price.
See here for more details
This property is listed by Tokyo Portfolio.
Phone: +81 (0)3-5447-8700
Address: 5-15-12 Minami-azabu, Minato-ku, Tokyo
License number: Governor of Tokyo License (1) No. 107013 / Member of the Ibaraki Prefecture Chapter of the All Japan Real Estate Association / Member of the Tokyo Metropolitan Area Real Estate Fair Trading Council












