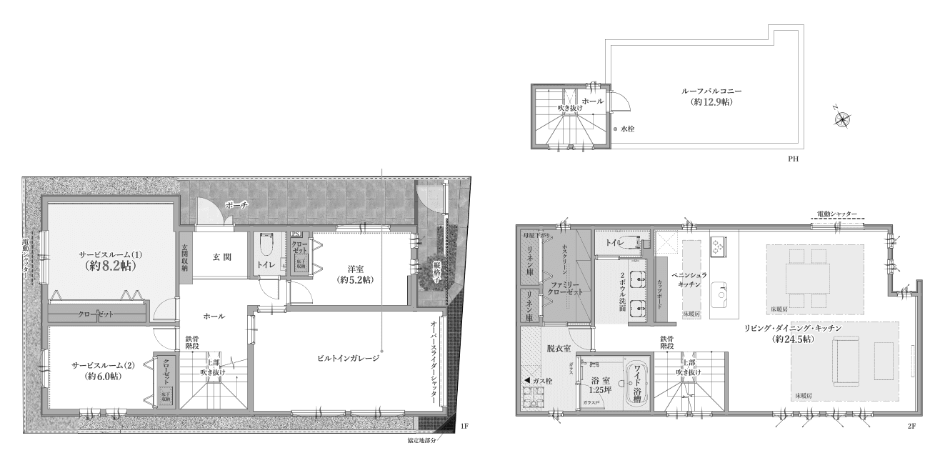
Welcome to LIST GARDEN Kakinokizaka 3-chome, where comfort meets functionality in this inviting terrace house unit. Spanning 124.63 square meters, this thoughtfully designed 1SSLDK layout offers ample space for both relaxation and productivity. Step inside to discover a harmonious blend of open living areas and cozy corners, perfect for daily life. The well-appointed kitchen flows seamlessly into the living space, making entertaining a breeze. Enjoy the fresh air on your private balcony, an ideal spot for morning coffee or evening unwinding. Convenience is key with an autolock system for added security and dedicated car parking. Located just a 17-minute walk from Gakugei-daigaku station on the Tokyu Toyoko line, you’ll appreciate easy access to the city while enjoying the tranquility of your new home. Embrace a lifestyle of comfort and convenience in this charming unit.
Listed by Tokyo Portfolio • Acting as intermediary
Listing updated: 2026-04-07
Floorplan


Around This Property
Komazawa-daigaku
min walk
- Den En Toshi
Gakugei-daigaku
min walk
- Toyoko
Policies
Pets allowed
No
Move-in date
Mid-July, 2023
Building management
Unstaffed
Management fee
-
Repair fund fee
-
Land ownership type
Freehold
This property is listed by Tokyo Portfolio.
Phone: +81 (0)3-5447-8700
Address: 5-15-12 Minami-azabu, Minato-ku, Tokyo
License number: Governor of Tokyo License (1) No. 107013 / Member of the Ibaraki Prefecture Chapter of the All Japan Real Estate Association / Member of the Tokyo Metropolitan Area Real Estate Fair Trading Council




