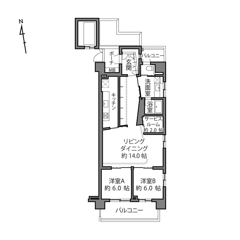
Welcome to Open Residencia Meguro Aobadai Terrace, where comfort meets functionality in this stunning 2SLDK condo on the second floor. Spanning 81.3 sqm, the layout seamlessly integrates living, dining, and sleeping areas, creating a harmonious flow that supports daily life. Step onto the elegant flooring and enjoy the natural light pouring in through large windows, leading to a private balcony perfect for morning coffee or evening relaxation. With amenities like autolock security, high-speed internet, and pet-friendly policies, this unit caters to modern living needs. Located just a 14-minute walk from Shibuya Station, you’ll have easy access to multiple train lines, making your commute effortless. Experience the perfect blend of urban convenience and homey comfort in this exceptional space.
Listed by Tokyo Portfolio • Acting as intermediary
Listing updated: 2026-02-03
Around This Property
Shibuya
14 min walk
- Saikyo
Yamanote- ShonanShinjuku
- Inokashira
- Hanzomon
- Ginza
- Fukutoshin
- Toyoko
- Den En Toshi
Ikejiriohashi
min walk
- Den En Toshi
Floorplan


Payment Calculator
Property Price
Interest rate
The average interest rate for a 35-year fixed loan is 1.368%, while the average variable interest rate is 0.470%.
Loan term
Down payment (20%)¥0
Estimated closing fees (5-8%)
¥10,250,000 – ¥16,400,000
↳ Commission (3.3%) + ¥66,000¥6,831,000
TOTAL DUE AT CLOSE
¥10,250,000 – ¥16,400,000| Down payment (20%) | ¥0 |
| Estimated closing fees (5-8%) ↳ Commission (3.3%) + ¥66,000 | ¥10,250,000 – ¥16,400,000 ¥6,831,000 |
| TOTAL DUE AT CLOSE | ¥10,250,000 – ¥16,400,000 |
|---|
As some of these numbers are calculated using the government-assessed value of the property, the actual total upfront cost cannot be known. Generally speaking, we recommend clients prepare an additional 5–8% on top of the list price.
See here for more details
This property is listed by Tokyo Portfolio.
Phone: +81 (0)3-5447-8700
Address: 5-15-12 Minami-azabu, Minato-ku, Tokyo
License number: Governor of Tokyo License (1) No. 107013 / Member of the Ibaraki Prefecture Chapter of the All Japan Real Estate Association / Member of the Tokyo Metropolitan Area Real Estate Fair Trading Council



























