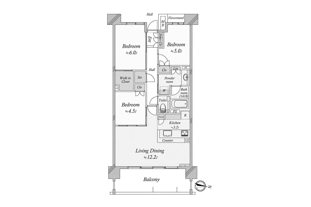
Nestled within Park Homes Shinagawa The Residence, this beautifully refreshed 3LDK spans 71.52㎡, blending comfort with modern refinement. Recent upgrades include new flooring, gas appliances, air conditioning, and a sleek kitchen with dishwasher and disposer—ensuring effortless, stylish living. Shared amenities enrich daily life, from a library lounge and kids’ spaces to a canal-view terrace and party rooms. Pet-friendly policies make it ideal for families with four-legged companions. Located in Shinagawa, one of Tokyo’s most dynamic hubs, residents enjoy exceptional connectivity, vibrant shopping, and waterfront promenades. The neighborhood appeals to professionals, international families, and commuters alike, offering both urban energy and moments of calm retreat.
Listed by Tokyo Portfolio • Acting as intermediary
Listing updated: 2025-09-07
Around This Property
Shinagawa
11 min walk
- JobanRapid
Yamanote- Tokaido
Yokosuka
Keihin Tohoku Negishi- Main
Floorplan


Payment Calculator
Property Price
Interest rate
The average interest rate for a 35-year fixed loan is 1.368%, while the average variable interest rate is 0.470%.
Loan term
Down payment (20%)¥0
Estimated closing fees (5-8%)
¥8,490,000 – ¥13,584,000
↳ Commission (3.3%) + ¥66,000¥5,669,400
TOTAL DUE AT CLOSE
¥8,490,000 – ¥13,584,000| Down payment (20%) | ¥0 |
| Estimated closing fees (5-8%) ↳ Commission (3.3%) + ¥66,000 | ¥8,490,000 – ¥13,584,000 ¥5,669,400 |
| TOTAL DUE AT CLOSE | ¥8,490,000 – ¥13,584,000 |
|---|
As some of these numbers are calculated using the government-assessed value of the property, the actual total upfront cost cannot be known. Generally speaking, we recommend clients prepare an additional 5–8% on top of the list price.
See here for more details
This property is listed by Tokyo Portfolio.
Phone: +81 (0)3-5447-8700
Address: 5-15-12 Minami-azabu, Minato-ku, Tokyo
License number: Governor of Tokyo License (1) No. 107013 / Member of the Ibaraki Prefecture Chapter of the All Japan Real Estate Association / Member of the Tokyo Metropolitan Area Real Estate Fair Trading Council


















