






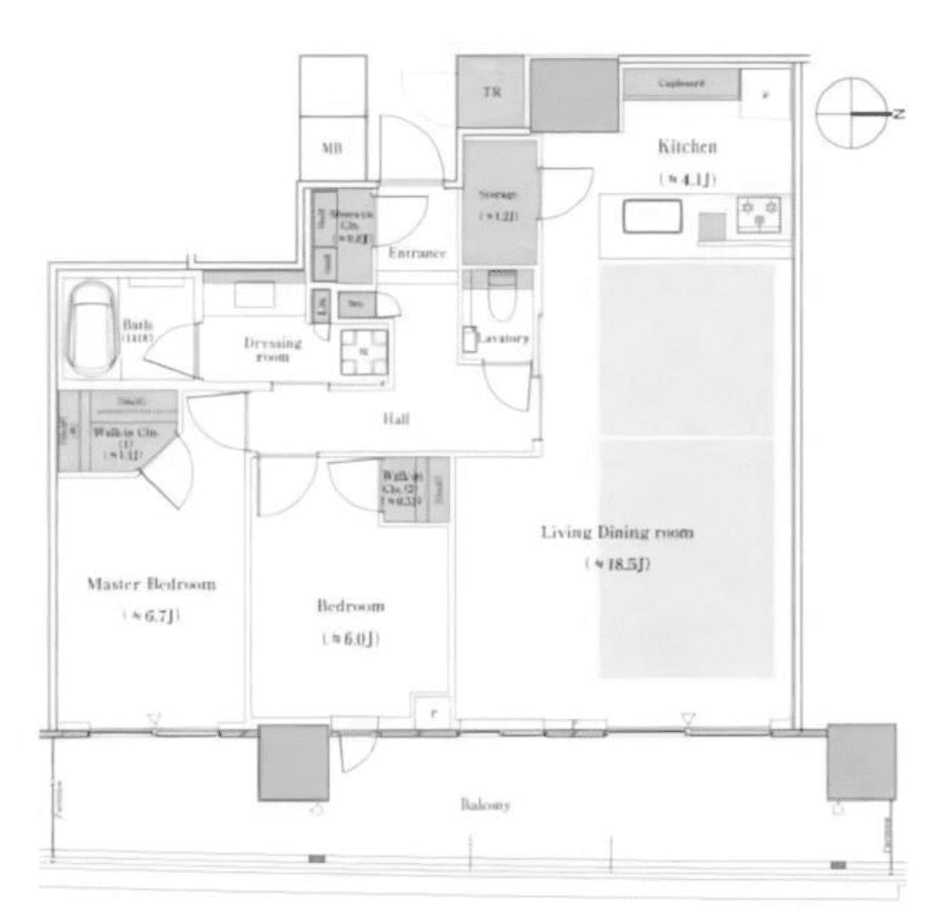
Welcome to unit 14F, a spacious 81.64 sqm sanctuary perched on the 14th floor. This thoughtfully designed apartment offers a harmonious blend of comfort and functionality, perfect for modern living. Step inside to discover an inviting layout that seamlessly connects living spaces. Enjoy the luxury of a separate bathroom and toilet, enhancing privacy and convenience. The flooring throughout adds a touch of elegance, while the balcony invites you to unwind and soak in the views. Pet lovers will appreciate the dog and cat-friendly policy, ensuring your furry companions feel right at home. With a designated parking space and an autolock system for added security, this unit is designed for your peace of mind. Experience the perfect blend of lifestyle and comfort in unit 14F.
Listed by Tokyo Portfolio • Acting as intermediary
Listing updated: 2026-02-03

Property Price
Interest rate
The average interest rate for a 35-year fixed loan is 1.368%, while the average variable interest rate is 0.470%.
Loan term
Down payment (20%)¥0
Estimated closing fees (5-8%)
¥9,250,000 – ¥14,800,000
↳ Commission (3.3%) + ¥66,000¥6,171,000
TOTAL DUE AT CLOSE
¥9,250,000 – ¥14,800,000| Down payment (20%) | ¥0 |
| Estimated closing fees (5-8%) ↳ Commission (3.3%) + ¥66,000 | ¥9,250,000 – ¥14,800,000 ¥6,171,000 |
| TOTAL DUE AT CLOSE | ¥9,250,000 – ¥14,800,000 |
|---|
As some of these numbers are calculated using the government-assessed value of the property, the actual total upfront cost cannot be known. Generally speaking, we recommend clients prepare an additional 5–8% on top of the list price.
See here for more details

Park Tower Harumi
2019
Built
1
Units on sale
This property is listed by Tokyo Portfolio.
Phone: +81 (0)3-5447-8700
Address: 5-15-12 Minami-azabu, Minato-ku, Tokyo
License number: Governor of Tokyo License (1) No. 107013 / Member of the Ibaraki Prefecture Chapter of the All Japan Real Estate Association / Member of the Tokyo Metropolitan Area Real Estate Fair Trading Council