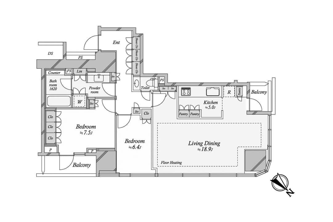
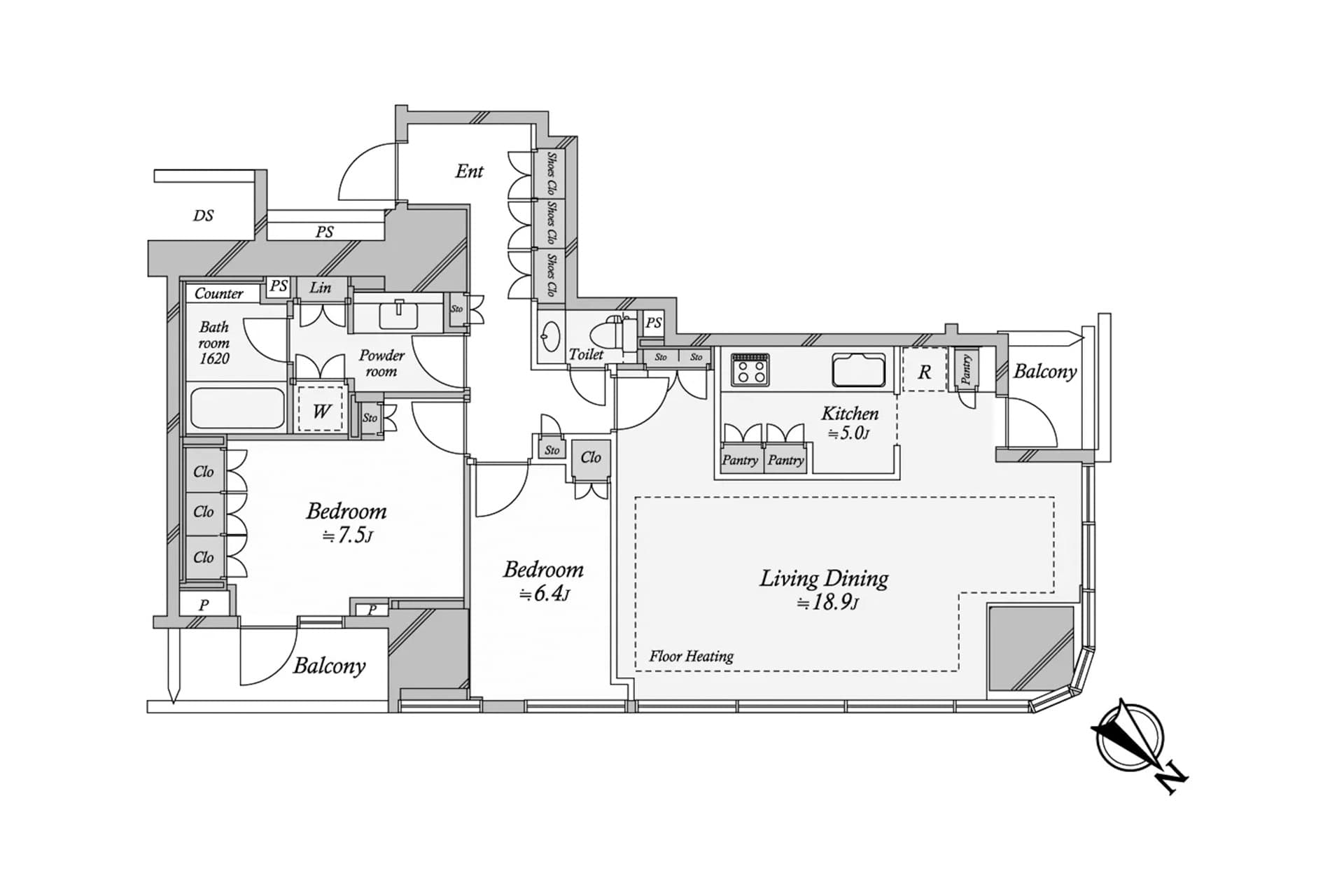
Bathed in natural light from its southwest and southeast exposures, this refined 2LDK corner residence offers an effortless sense of openness. The expansive living and dining area becomes the heart of daily life, complemented by ceiling cassette air conditioning throughout, a sleek IH kitchen with built-in oven, and a generously sized 1620 bathroom designed for true relaxation. Low-E glass enhances comfort year-round, while four-layer security and floor-level garbage stations add discreet convenience. Set moments from Daikanyama, the neighborhood is celebrated for its tree-lined streets, designer boutiques, and artisanal cafés. It’s an ideal setting for professionals or small families seeking style, calm, and cultural sophistication in central Tokyo.
Listed by Tokyo Portfolio • Acting as intermediary
Listing updated: 2026-01-25
Around This Property
Daikan-yama
4 min walk
- Toyoko
Ebisu
10 min walk
- ShonanShinjuku
Yamanote- Saikyo
- Hibiya
Payment Calculator

Property Price
Interest rate
The average interest rate for a 35-year fixed loan is 1.368%, while the average variable interest rate is 0.470%.
Loan term
Down payment (20%)¥0
Estimated closing fees (5-8%)
¥21,990,000 – ¥35,184,000
↳ Commission (3.3%) + ¥66,000¥14,579,400
TOTAL DUE AT CLOSE
¥21,990,000 – ¥35,184,000| Down payment (20%) | ¥0 |
| Estimated closing fees (5-8%) ↳ Commission (3.3%) + ¥66,000 | ¥21,990,000 – ¥35,184,000 ¥14,579,400 |
| TOTAL DUE AT CLOSE | ¥21,990,000 – ¥35,184,000 |
|---|
As some of these numbers are calculated using the government-assessed value of the property, the actual total upfront cost cannot be known. Generally speaking, we recommend clients prepare an additional 5–8% on top of the list price.
See here for more details
More Units in This Building

Proud Daikanyama Front
2021
Built
1
Units available
This property is listed by Tokyo Portfolio.
Phone: +81 (0)3-5447-8700
Address: 5-15-12 Minami-azabu, Minato-ku, Tokyo
License number: Governor of Tokyo License (1) No. 107013 / Member of the Ibaraki Prefecture Chapter of the All Japan Real Estate Association / Member of the Tokyo Metropolitan Area Real Estate Fair Trading Council













