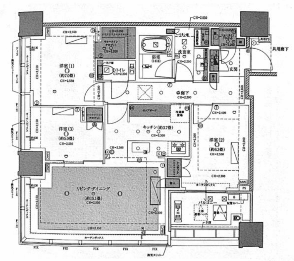
Welcome to unit 22F, a stunning 83.41 sqm sanctuary perched on the 22nd floor. This apartment seamlessly blends comfort and functionality, offering a spacious layout designed for modern living. Step inside to discover elegant flooring that enhances the inviting atmosphere. The well-appointed system kitchen, complete with a dishwasher, makes meal preparation a delight. Enjoy the convenience of a separate bathroom and toilet, ensuring privacy and ease during your daily routine. A generous walk-in closet provides ample storage, while the balcony invites you to savor breathtaking views. With an autolock system for added security, this unit is not just a home; it is a lifestyle. Experience the perfect blend of luxury and practicality in this exceptional space.
Listed by Tokyo Portfolio • Acting as intermediary
Listing updated: 2026-02-03
Around This Property
Shirokane-takanawa
3 min walk
- Mita
- Namboku
Tokyo International School
Ages 4-16 years | Walk 4 mins by foot
The Montessori School of Tokyo (Grove Campus)
Ages 1-15 years | Walk 9 mins by foot
Nishimachi International School
Ages 5-14 years | Walk 18 mins by foot
The Montessori School of Tokyo (Forest Campus)
Ages 1-15 years | Walk 9 mins by foot
Ivy Prep International school
Ages 3-14 years | Walk 3 mins by foot
Payment Calculator

Property Price
Interest rate
The average interest rate for a 35-year fixed loan is 1.368%, while the average variable interest rate is 0.470%.
Loan term
Down payment (20%)¥0
Estimated closing fees (5-8%)
¥21,000,000 – ¥33,600,000
↳ Commission (3.3%) + ¥66,000¥13,926,000
TOTAL DUE AT CLOSE
¥21,000,000 – ¥33,600,000| Down payment (20%) | ¥0 |
| Estimated closing fees (5-8%) ↳ Commission (3.3%) + ¥66,000 | ¥21,000,000 – ¥33,600,000 ¥13,926,000 |
| TOTAL DUE AT CLOSE | ¥21,000,000 – ¥33,600,000 |
|---|
As some of these numbers are calculated using the government-assessed value of the property, the actual total upfront cost cannot be known. Generally speaking, we recommend clients prepare an additional 5–8% on top of the list price.
See here for more details
More Units in This Building

Shirokane The Sky
2023
Built
16
Units available

Unit
30131 Bed • 3 Bath
¥645,000Price

Unit
8011 Bed • 1 Bath
¥250,000Price

Unit
44101 Bed • 2 Bath
¥998,000,000Price

Unit
38151 Bed • 3 Bath
¥798,000,000Price

Unit
14031 Bed • 2 Bath
¥268,900,000Price

Unit
24141 Bed • 2 Bath
¥438,000,000Price

Unit
38181 Bed • 2 Bath
¥448,000,000Price

Unit
14031 Bed • 2 Bath
¥259,900,000Price

Unit
5321 Bed • 2 Bath
¥620,000Price

Unit
29081 Bed • 2 Bath
¥530,000Price

Unit
301 Bed • 2 Bath
¥640,000,000Price

Unit
201 Bed • 2 Bath
¥450,000Price

Unit
23F1 Bed • 3 Bath
¥398,000,000Price

Unit
16F1 Bed • 3 Bath
¥358,000,000Price

Unit
11161 Bed • 3 Bath
¥338,000,000Price

Unit
12171 Bed • 2 Bath
¥348,000,000Price
This property is listed by Tokyo Portfolio.
Phone: +81 (0)3-5447-8700
Address: 5-15-12 Minami-azabu, Minato-ku, Tokyo
License number: Governor of Tokyo License (1) No. 107013 / Member of the Ibaraki Prefecture Chapter of the All Japan Real Estate Association / Member of the Tokyo Metropolitan Area Real Estate Fair Trading Council

















