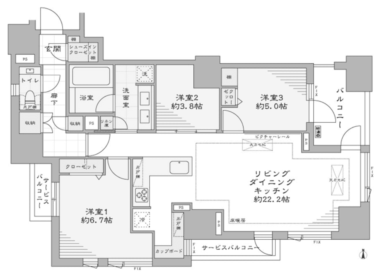
Located on the ninth floor, this 3LDK residence at Sunwood Hiroo offers 84.16 square meters of well-considered living space. A refined layout with a shoe-in closet enhances daily comfort, while bright interiors and clean finishes support a calm, modern lifestyle suited to families or professionals seeking privacy in the city. Hiroo is one of Tokyo’s most sought-after residential neighborhoods. Known for international schools, upscale supermarkets, and relaxed cafés, it attracts global families and long-term residents. Green spaces, refined dining, and a strong sense of community define the area. Excellent access to central Tokyo allows life here to feel both grounded and effortlessly connected.
Listed by Tokyo Portfolio • Acting as intermediary
Listing updated: 2026-01-29
Around This Property
Hiro-o
1 min walk
- Hibiya
Nishimachi International School
Ages 5-14 years | By Car 7 mins by foot
Payment Calculator

Property Price
Interest rate
The average interest rate for a 35-year fixed loan is 1.368%, while the average variable interest rate is 0.470%.
Loan term
Down payment (20%)¥0
Estimated closing fees (5-8%)
¥20,900,000 – ¥33,440,000
↳ Commission (3.3%) + ¥66,000¥13,860,000
TOTAL DUE AT CLOSE
¥20,900,000 – ¥33,440,000| Down payment (20%) | ¥0 |
| Estimated closing fees (5-8%) ↳ Commission (3.3%) + ¥66,000 | ¥20,900,000 – ¥33,440,000 ¥13,860,000 |
| TOTAL DUE AT CLOSE | ¥20,900,000 – ¥33,440,000 |
|---|
As some of these numbers are calculated using the government-assessed value of the property, the actual total upfront cost cannot be known. Generally speaking, we recommend clients prepare an additional 5–8% on top of the list price.
See here for more details
More Units in This Building

Sunwood Hiroo
2020
Built
2
Units on sale
This property is listed by Tokyo Portfolio.
Phone: +81 (0)3-5447-8700
Address: 5-15-12 Minami-azabu, Minato-ku, Tokyo
License number: Governor of Tokyo License (1) No. 107013 / Member of the Ibaraki Prefecture Chapter of the All Japan Real Estate Association / Member of the Tokyo Metropolitan Area Real Estate Fair Trading Council




