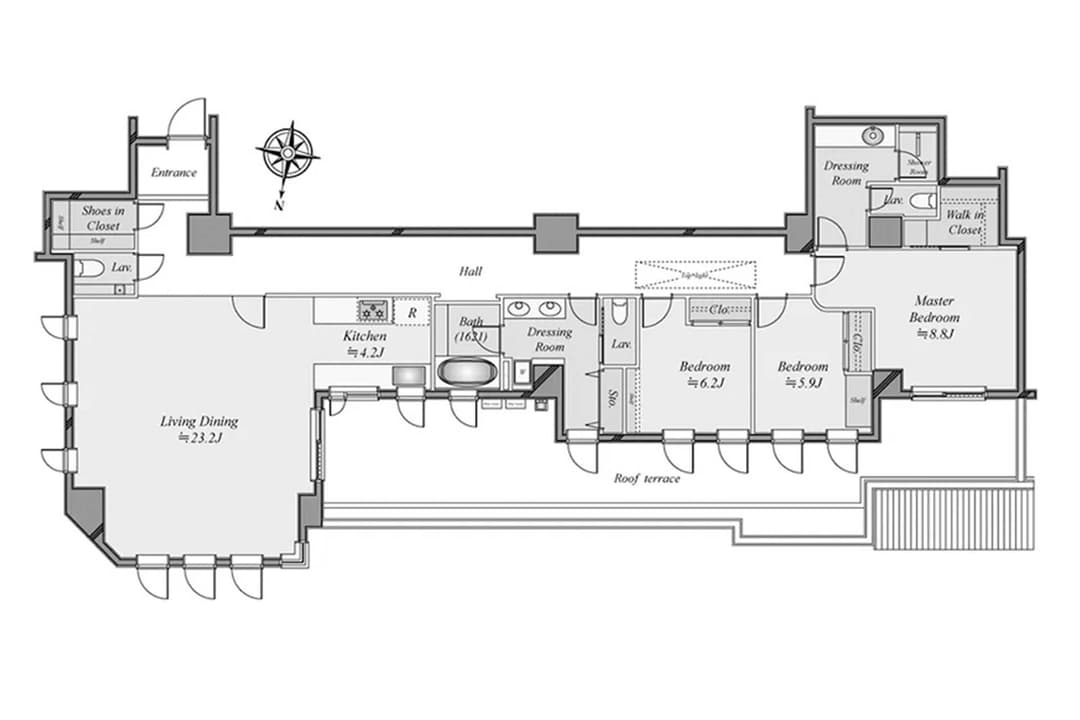
Perched on the top floor of Sunwood Shoto, this elegant 3LDK residence spans 155.8㎡ and offers a refined blend of space, light, and privacy. A 34.94㎡ private rooftop balcony creates the perfect stage for al fresco dining or sunset gatherings. Floor heating in the LDK and master bedroom adds year-round comfort, while a flat parking space with exclusive usage rights ensures convenience. Pet-friendly policies make it a home for every member of the family. Located in Shoto, one of Tokyo’s most coveted residential enclaves, the neighborhood offers leafy streets, art museums, and serene parks, all moments from the vibrant dining and culture of Shibuya. Ideal for discerning professionals or families seeking tranquility with urban access.
Listed by Tokyo Portfolio • Acting as intermediary
Listing updated: 2025-08-11
Around This Property
Shibuya
11 min walk
- Saikyo
Yamanote- ShonanShinjuku
- Inokashira
- Hanzomon
- Ginza
- Fukutoshin
- Toyoko
- Den En Toshi
Yoyogi-koen
8 min walk
- Chiyoda
United School of Tokyo, ES Campus
Ages 3-14 years | Walk 7 mins by foot
United School of Tokyo, MS campus
Ages 3-14 years | Walk 8 mins by foot
Payment Calculator

Property Price
Interest rate
The average interest rate for a 35-year fixed loan is 1.368%, while the average variable interest rate is 0.470%.
Loan term
Down payment (20%)¥0
Estimated closing fees (5-8%)
¥39,440,000 – ¥63,104,000
↳ Commission (3.3%) + ¥66,000¥26,096,400
TOTAL DUE AT CLOSE
¥39,440,000 – ¥63,104,000| Down payment (20%) | ¥0 |
| Estimated closing fees (5-8%) ↳ Commission (3.3%) + ¥66,000 | ¥39,440,000 – ¥63,104,000 ¥26,096,400 |
| TOTAL DUE AT CLOSE | ¥39,440,000 – ¥63,104,000 |
|---|
As some of these numbers are calculated using the government-assessed value of the property, the actual total upfront cost cannot be known. Generally speaking, we recommend clients prepare an additional 5–8% on top of the list price.
See here for more details
This property is listed by Tokyo Portfolio.
Phone: +81 (0)3-5447-8700
Address: 5-15-12 Minami-azabu, Minato-ku, Tokyo
License number: Governor of Tokyo License (1) No. 107013 / Member of the Ibaraki Prefecture Chapter of the All Japan Real Estate Association / Member of the Tokyo Metropolitan Area Real Estate Fair Trading Council








