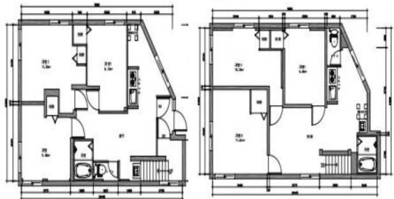
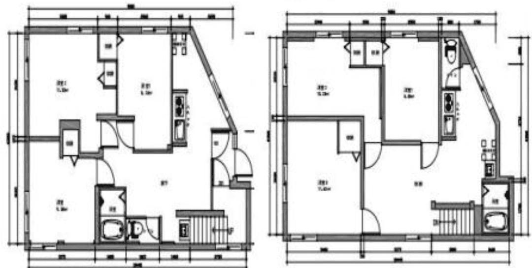
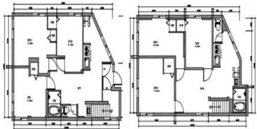
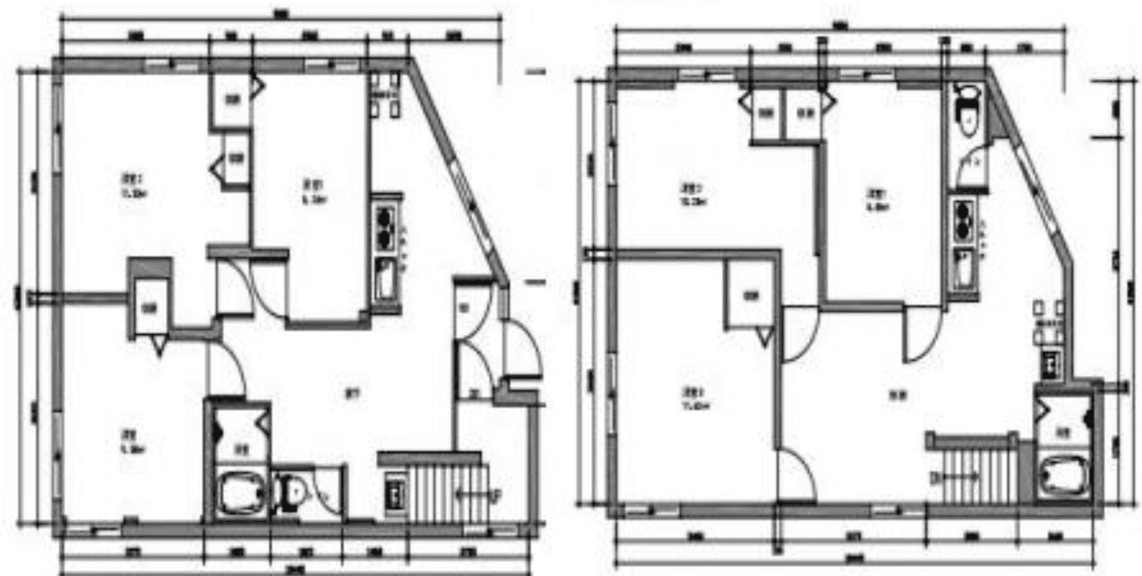
Located in Shimoochiai, within the Takadanobaba area of Shinjuku, this expansive private house offers 123.96 square meters of versatile living space across a 5LDK plus layout. Six bedrooms allow exceptional flexibility, supporting large families, multi generational living, or dedicated rooms for work and study. The plan balances shared living areas with personal privacy, creating a home that adapts easily to changing needs. Takadanobaba is a dynamic neighborhood known for universities, everyday dining, and strong transport links across Tokyo. Nearby parks and schools add residential appeal, making the area well suited to families and professionals alike. This Takadanobaba house combines space, connectivity, and long term urban practicality.
Listed by Tokyo Portfolio • Acting as intermediary
Listing updated: 2025-12-17
Around This Property
Takadanobaba
9 min walk
Yamanote- Shinjuku
- Tozai
Payment Calculator

Property Price
Interest rate
The average interest rate for a 35-year fixed loan is 1.368%, while the average variable interest rate is 0.470%.
Loan term
Down payment (20%)¥0
Estimated closing fees (5-8%)
¥5,750,000 – ¥9,200,000
↳ Commission (3.3%) + ¥66,000¥3,861,000
TOTAL DUE AT CLOSE
¥5,750,000 – ¥9,200,000| Down payment (20%) | ¥0 |
| Estimated closing fees (5-8%) ↳ Commission (3.3%) + ¥66,000 | ¥5,750,000 – ¥9,200,000 ¥3,861,000 |
| TOTAL DUE AT CLOSE | ¥5,750,000 – ¥9,200,000 |
|---|
As some of these numbers are calculated using the government-assessed value of the property, the actual total upfront cost cannot be known. Generally speaking, we recommend clients prepare an additional 5–8% on top of the list price.
See here for more details
This property is listed by Tokyo Portfolio.
Phone: +81 (0)3-5447-8700
Address: 5-15-12 Minami-azabu, Minato-ku, Tokyo
License number: Governor of Tokyo License (1) No. 107013 / Member of the Ibaraki Prefecture Chapter of the All Japan Real Estate Association / Member of the Tokyo Metropolitan Area Real Estate Fair Trading Council



