


















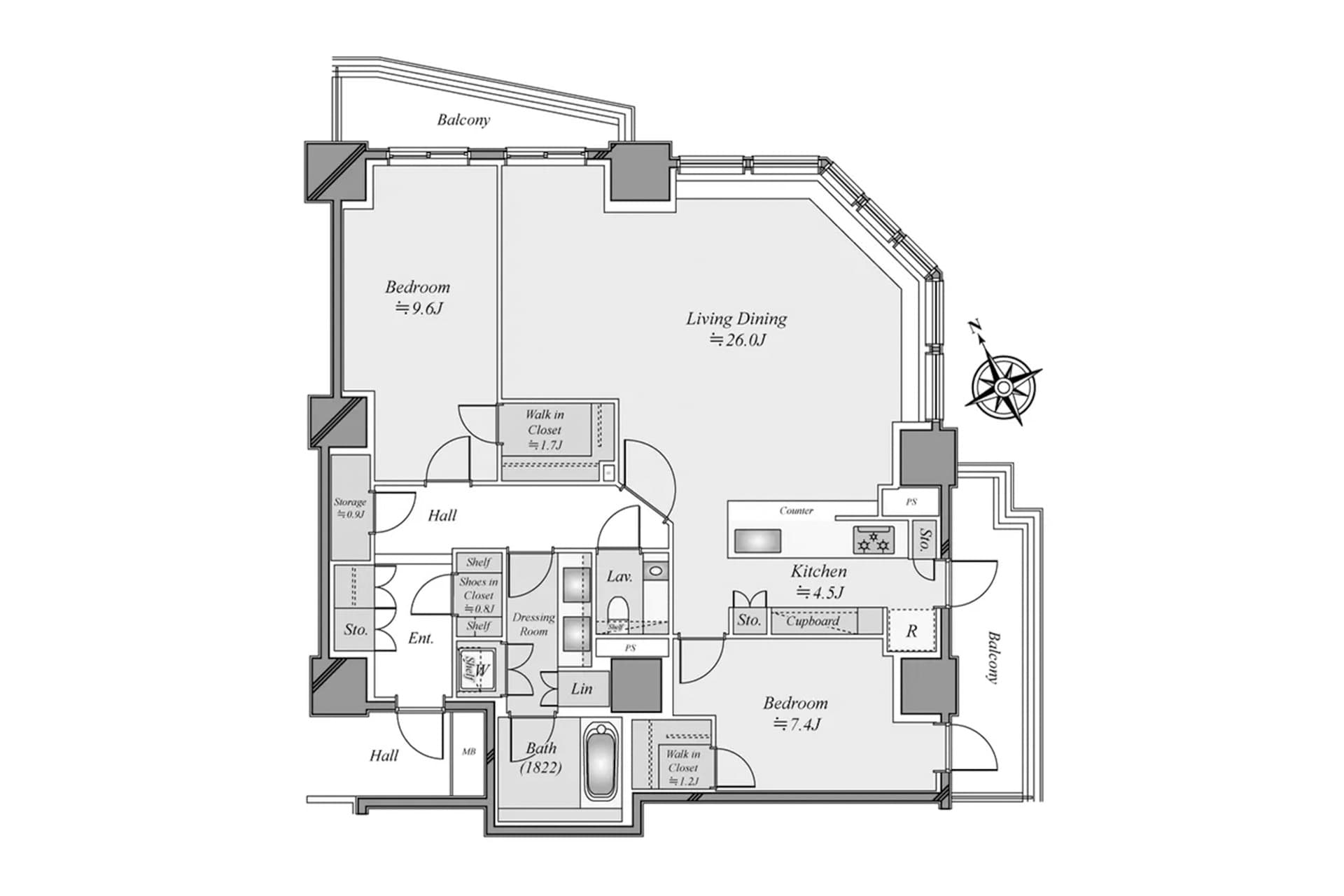
Rising above the city on the 19th floor, this northeast corner residence at The Park House Mita Garden offers a rare balance of privacy, light, and iconic views. From the expansive living and dining area, Tokyo Tower becomes part of your everyday scenery, while dual balconies invite fresh air and changing skies into the home. Premium Plus specifications, a generous 1822-sized bathroom, double vanities, and two walk-in closets elevate daily comfort. Dedicated flat parking and car storage add exceptional convenience. Located near Shirokanetakanawa, the neighborhood blends refined calm with urban accessibility. Beloved for its parks, international schools, and dining, it suits discerning professionals, couples, and small families seeking a sophisticated Tokyo lifestyle.
Listed by Tokyo Portfolio • Acting as intermediary
Listing updated: 2026-01-29
8 min walk
9 min walk
Ages 1-15 years | Walk 5 mins by foot
Ages 1-15 years | Walk 10 mins by foot
Ages 3-14 years | Walk 3 mins by foot
Ages 4-16 years | Walk 3 mins by foot

Property Price
Interest rate
The average interest rate for a 35-year fixed loan is 1.368%, while the average variable interest rate is 0.470%.
Loan term
Down payment (20%)¥0
Estimated closing fees (5-8%)
¥30,000,000 – ¥48,000,000
↳ Commission (3.3%) + ¥66,000¥19,866,000
TOTAL DUE AT CLOSE
¥30,000,000 – ¥48,000,000| Down payment (20%) | ¥0 |
| Estimated closing fees (5-8%) ↳ Commission (3.3%) + ¥66,000 | ¥30,000,000 – ¥48,000,000 ¥19,866,000 |
| TOTAL DUE AT CLOSE | ¥30,000,000 – ¥48,000,000 |
|---|
As some of these numbers are calculated using the government-assessed value of the property, the actual total upfront cost cannot be known. Generally speaking, we recommend clients prepare an additional 5–8% on top of the list price.
See here for more details
This property is listed by Tokyo Portfolio.
Phone: +81 (0)3-5447-8700
Address: 5-15-12 Minami-azabu, Minato-ku, Tokyo
License number: Governor of Tokyo License (1) No. 107013 / Member of the Ibaraki Prefecture Chapter of the All Japan Real Estate Association / Member of the Tokyo Metropolitan Area Real Estate Fair Trading Council