





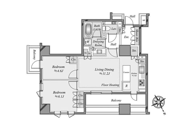
Experience refined urban living in The Parkhouse Mita Garden, a sophisticated 3LDK unit completed in 2021. This meticulously designed 83.98㎡ residence on the 4th floor of a 22-story building features elegant living spaces with heated flooring in the living and dining area. The modern kitchen is equipped with a dishwasher and disposer, offering both convenience and style. Located in the heart of Mita, this residence provides seamless access to multiple train lines, making it ideal for busy professionals and families. The neighborhood combines lush greenery with urban amenities, offering parks, renowned schools, and fine dining options within walking distance.
Listed by Tokyo Portfolio • Acting as intermediary
Listing updated: 2025-01-30
Around This Property
Shirokane-takanawa
9 min walk
- Mita
- Namboku
Azabu-juban
9 min walk
- Oedo
- Namboku
Payment Calculator

Property Price
approx. ¥239,900,000
Interest rate
The average interest rate for a 35-year fixed loan is 1.368%, while the average variable interest rate is 0.470%.
Loan term
Down payment (20%)¥0
Commission (3.3% + ¥66,000)¥7,982,700
Estimated closing fees (4%)
¥9,596,000
TOTAL DUE AT CLOSE
¥17,578,700| Down payment (20%) | - | ¥0 |
| Commission (3.3% + ¥66,000) | ¥7,982,700 | ¥7,982,700 |
| Estimated closing fees (4%) | ¥9,596,000 | ¥9,596,000 |
| TOTAL DUE AT CLOSE | ¥17,578,700 | ¥17,578,700 |
|---|
More Units in This Building

The Parkhouse Mita Garden
2021
Built
1
Units on sale
This property is listed by Tokyo Portfolio.
Phone: +81 (0)3-5447-8700
Address: 5-15-12 Minami-azabu, Minato-ku, Tokyo
License number: Governor of Tokyo License (1) No. 107013 / Member of the Ibaraki Prefecture Chapter of the All Japan Real Estate Association / Member of the Tokyo Metropolitan Area Real Estate Fair Trading Council



























