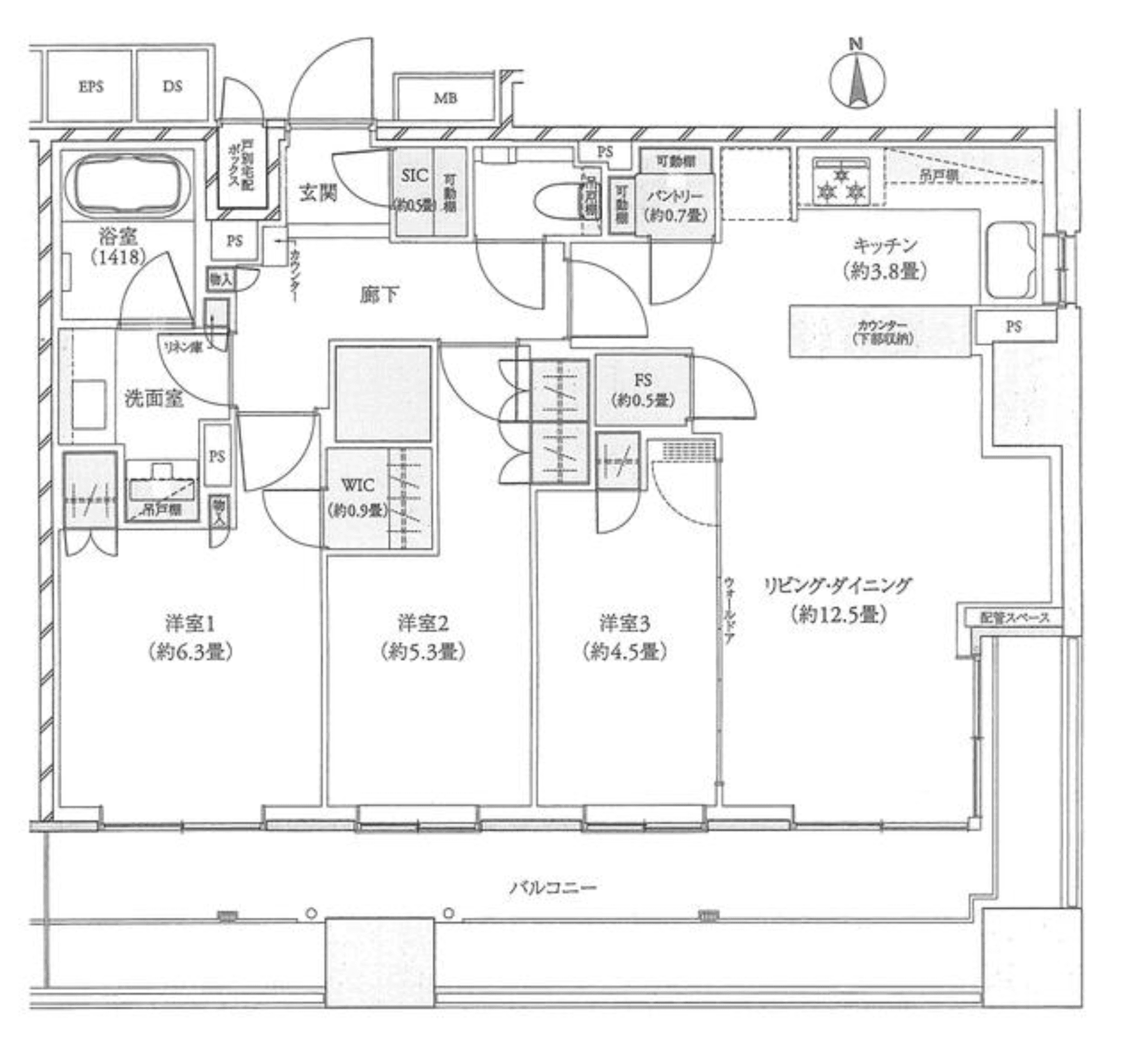
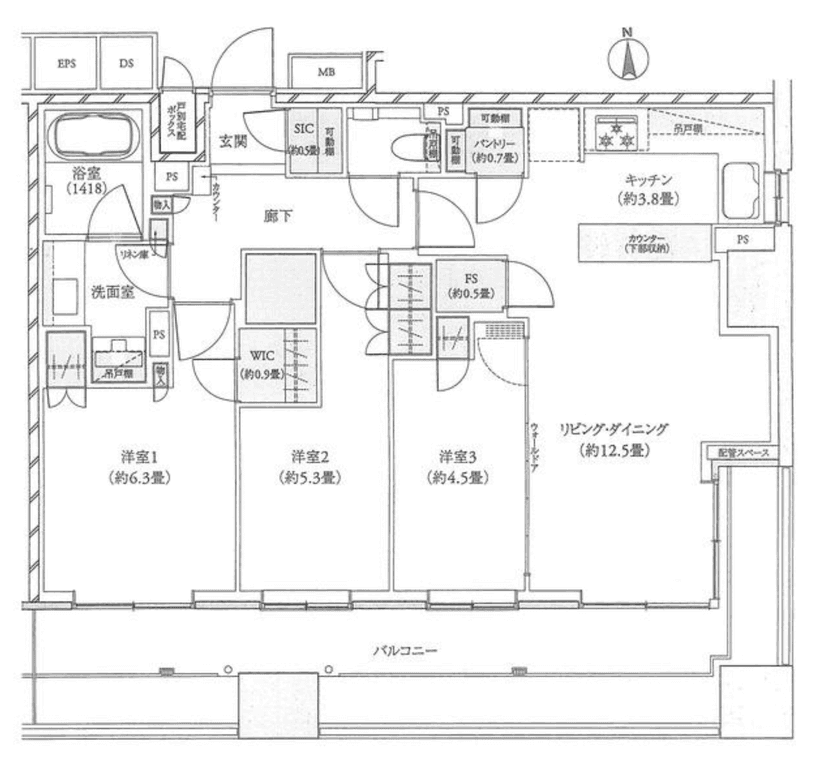
Welcome to Unit 23 in The Park House Omori Tower, where modern living meets comfort. This spacious 3LDK condo spans 76.28 square meters and is situated on the 23rd floor, offering breathtaking views and an abundance of natural light. Step inside to discover a well-designed layout that seamlessly integrates functionality with style. The open-plan living area flows effortlessly into a contemporary system kitchen, complete with a dishwasher and reheating function, making meal prep a delight. Enjoy your morning coffee on the private balcony, a perfect spot for relaxation. The unit features a walk-in closet and additional storage, ensuring that your space remains organized and clutter-free. With air-conditioning and quality flooring throughout, comfort is guaranteed year-round. Conveniently located just a 3-minute walk from Omori Station on the Keihin-Tohoku line, and a 9-minute stroll to Omorikaigan Station on the Keikyu line, commuting is a breeze. Experience the perfect blend of urban...
Listed by Tokyo Portfolio • Acting as intermediary
Listing updated: 2026-03-12
Around This Property
Omorikaigan
9 min walk
- Main
Omori
3 min walk
Keihin Tohoku Negishi
Floorplan


Payment Calculator
Property Price
Interest rate
The average interest rate for a 35-year fixed loan is 1.368%, while the average variable interest rate is 0.470%.
Loan term
Down payment (20%)¥0
Estimated closing fees (5-8%)
¥9,990,000 – ¥15,984,000
↳ Commission (3.3%) + ¥66,000¥6,659,400
TOTAL DUE AT CLOSE
¥9,990,000 – ¥15,984,000| Down payment (20%) | ¥0 |
| Estimated closing fees (5-8%) ↳ Commission (3.3%) + ¥66,000 | ¥9,990,000 – ¥15,984,000 ¥6,659,400 |
| TOTAL DUE AT CLOSE | ¥9,990,000 – ¥15,984,000 |
|---|
As some of these numbers are calculated using the government-assessed value of the property, the actual total upfront cost cannot be known. Generally speaking, we recommend clients prepare an additional 5–8% on top of the list price.
See here for more details
This property is listed by Tokyo Portfolio.
Phone: +81 (0)3-5447-8700
Address: 5-15-12 Minami-azabu, Minato-ku, Tokyo
License number: Governor of Tokyo License (1) No. 107013 / Member of the Ibaraki Prefecture Chapter of the All Japan Real Estate Association / Member of the Tokyo Metropolitan Area Real Estate Fair Trading Council



