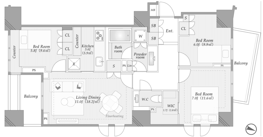
Welcome to Unit 201, a beautifully designed 78.7 sqm apartment that perfectly balances comfort and functionality. Located on the second floor, this inviting space features a thoughtful layout that enhances daily living. Step inside to discover a spacious living area that flows seamlessly into a modern kitchen, ideal for both entertaining and quiet evenings at home. The separate bathroom and toilet provide added convenience, while the bidet-toilet offers a touch of luxury. A generous walk-in closet ensures ample storage, keeping your living space organized and clutter-free. Enjoy your morning coffee on the private balcony, or take advantage of the pet-friendly policy to share your home with furry companions. With an autolock system and designated parking space, peace of mind is part of your everyday experience. This apartment is not just a place to live; it’s a sanctuary designed for your lifestyle.
Listed by Tokyo Portfolio • Acting as intermediary
Listing updated: 2026-02-19
Around This Property
Hanzomon
8 min walk
- Hanzomon
Ichigaya
2 min walk
- ChuoSobuLocal
- Shinjuku
- Namboku
Payment Calculator

Property Price
Interest rate
The average interest rate for a 35-year fixed loan is 1.368%, while the average variable interest rate is 0.470%.
Loan term
Down payment (20%)¥0
Estimated closing fees (5-8%)
¥17,400,000 – ¥27,840,000
↳ Commission (3.3%) + ¥66,000¥11,550,000
TOTAL DUE AT CLOSE
¥17,400,000 – ¥27,840,000| Down payment (20%) | ¥0 |
| Estimated closing fees (5-8%) ↳ Commission (3.3%) + ¥66,000 | ¥17,400,000 – ¥27,840,000 ¥11,550,000 |
| TOTAL DUE AT CLOSE | ¥17,400,000 – ¥27,840,000 |
|---|
As some of these numbers are calculated using the government-assessed value of the property, the actual total upfront cost cannot be known. Generally speaking, we recommend clients prepare an additional 5–8% on top of the list price.
See here for more details
This property is listed by Tokyo Portfolio.
Phone: +81 (0)3-5447-8700
Address: 5-15-12 Minami-azabu, Minato-ku, Tokyo
License number: Governor of Tokyo License (1) No. 107013 / Member of the Ibaraki Prefecture Chapter of the All Japan Real Estate Association / Member of the Tokyo Metropolitan Area Real Estate Fair Trading Council









