











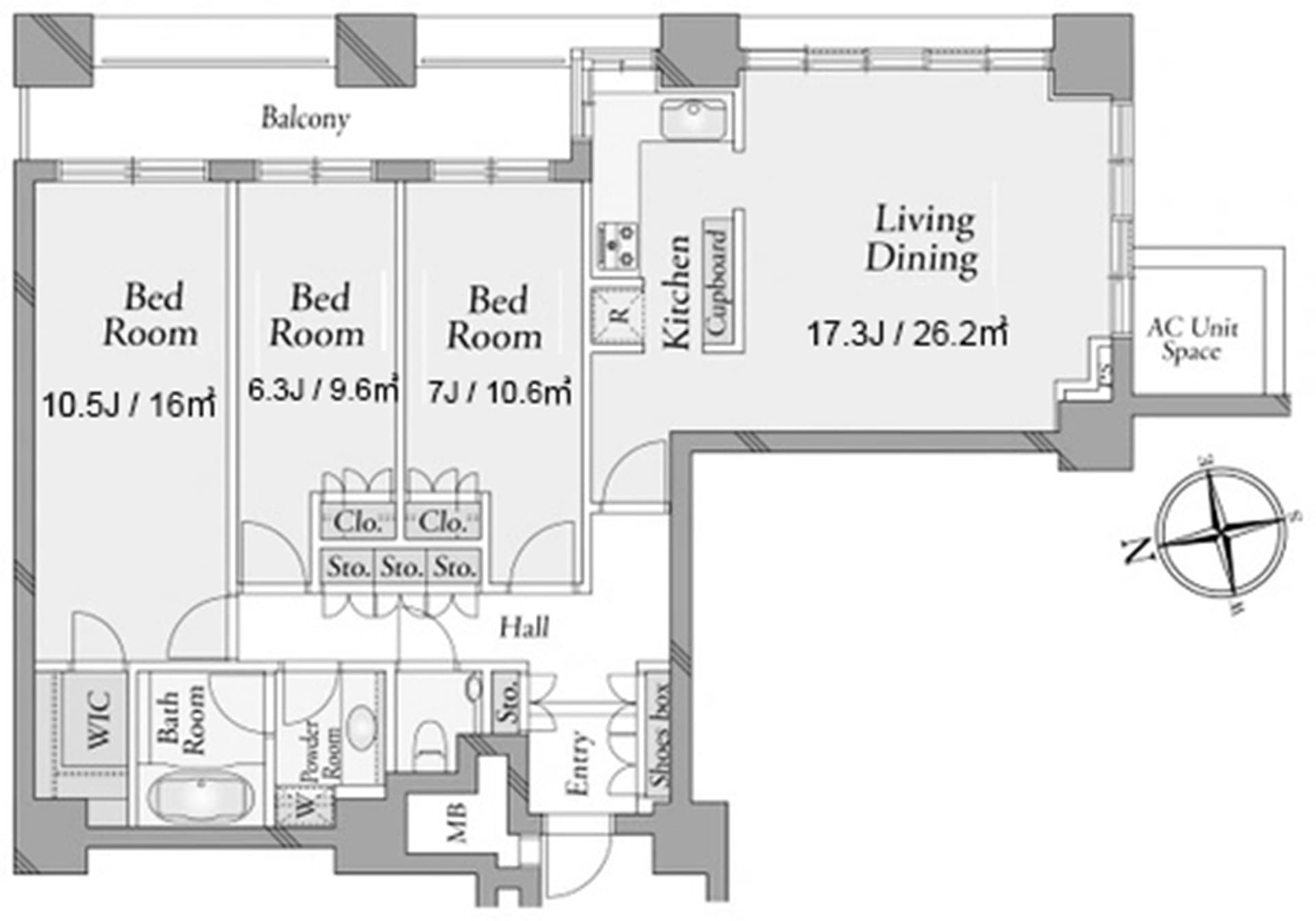
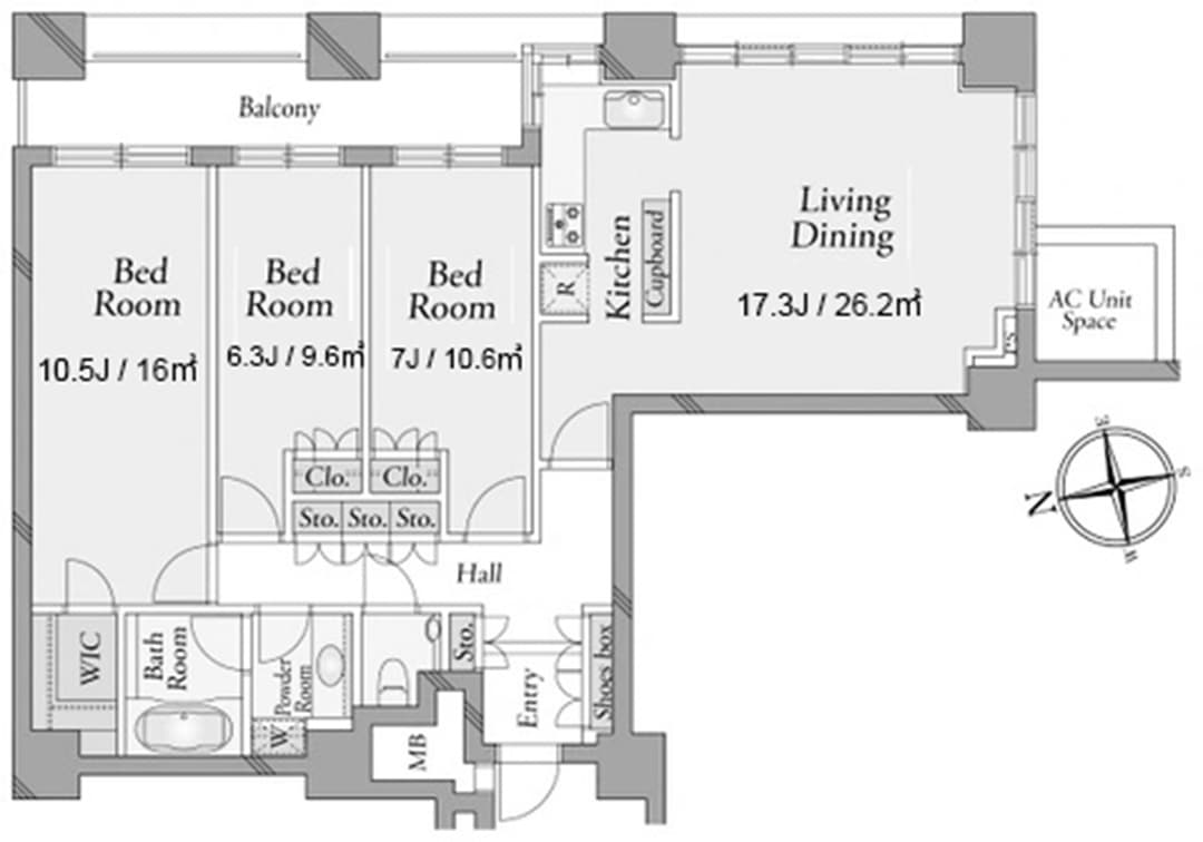
With sweeping views of Tokyo Bay and the iconic Rainbow Bridge, this expansive 102.66㎡, 3-bedroom unit at The Towers Daiba offers a tranquil escape wrapped in city sophistication. Sunlight floods the open-concept living and dining area through floor-to-ceiling windows, while the private balcony invites moments of stillness over the water. Designed for comfort and elegance, every detail—from high-end finishes to ample storage—caters to the rhythms of modern family life. Located in the heart of Odaiba, the residence sits amid waterfront promenades, museums, gourmet dining, and shopping destinations like DiverCity and Aqua City. This vibrant yet peaceful neighborhood is ideal for families, international residents, and professionals seeking balance between leisure and access. Nearby international schools and green open spaces add to its family-friendly charm. Built in 2006, The Towers Daiba features full-service amenities, including concierge, gym, guest suites, and 24-hour security. Wit...
Listed by Tokyo Portfolio • Acting as intermediary
Listing updated: 2025-06-21
Around This Property
Odaiba-Kaihinkōen
3 min walk
- Yurikamome
Payment Calculator

Property Price
approx. ¥215,000,000
Interest rate
The average interest rate for a 35-year fixed loan is 1.368%, while the average variable interest rate is 0.470%.
Loan term
Down payment (20%)¥0
Commission (3.3% + ¥66,000)¥7,161,000
Estimated closing fees (4%)
¥8,600,000
TOTAL DUE AT CLOSE
¥15,761,000| Down payment (20%) | - | ¥0 |
| Commission (3.3% + ¥66,000) | ¥7,161,000 | ¥7,161,000 |
| Estimated closing fees (4%) | ¥8,600,000 | ¥8,600,000 |
| TOTAL DUE AT CLOSE | ¥15,761,000 | ¥15,761,000 |
|---|
This property is listed by Tokyo Portfolio.
Phone: +81 (0)3-5447-8700
Address: 5-15-12 Minami-azabu, Minato-ku, Tokyo
License number: Governor of Tokyo License (1) No. 107013 / Member of the Ibaraki Prefecture Chapter of the All Japan Real Estate Association / Member of the Tokyo Metropolitan Area Real Estate Fair Trading Council




























