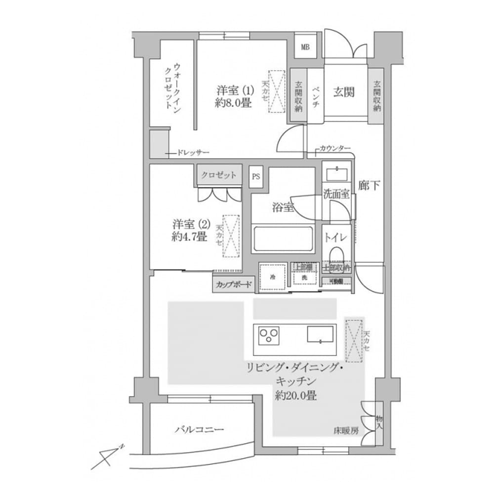
Bathed in sunlight from its southeast-facing wide-span windows, this stylishly renovated 2LDK at The Upper Residences at Minami-Aoyama offers a sense of calm and effortless elegance. The bright, open-plan LDK invites relaxed living and entertaining, while thoughtful touches—like a built-in entrance bench, spacious storage room, and generous closets—enhance everyday functionality. The primary bedroom features a walk-in closet and custom vanity, while the second room adapts easily as a guest suite or home office. Located in one of Tokyo’s most refined neighborhoods, Minami-Aoyama is known for its blend of high fashion, art galleries, and gourmet dining. With serene streets and designer boutiques just steps away, it’s ideal for creative professionals, couples, and small families seeking beauty in both form and lifestyle.
Listed by Tokyo Portfolio • Acting as intermediary
Listing updated: 2025-08-08
Around This Property
Omote-sando
6 min walk
- Chiyoda
- Hanzomon
- Ginza
Clarence International School (Omotesando)
Ages 1-6 years | Walk 6 mins by foot
Payment Calculator

Property Price
Interest rate
The average interest rate for a 35-year fixed loan is 1.368%, while the average variable interest rate is 0.470%.
Loan term
Down payment (20%)¥0
Estimated closing fees (5-8%)
¥13,900,000 – ¥22,240,000
↳ Commission (3.3%) + ¥66,000¥9,240,000
TOTAL DUE AT CLOSE
¥13,900,000 – ¥22,240,000| Down payment (20%) | ¥0 |
| Estimated closing fees (5-8%) ↳ Commission (3.3%) + ¥66,000 | ¥13,900,000 – ¥22,240,000 ¥9,240,000 |
| TOTAL DUE AT CLOSE | ¥13,900,000 – ¥22,240,000 |
|---|
As some of these numbers are calculated using the government-assessed value of the property, the actual total upfront cost cannot be known. Generally speaking, we recommend clients prepare an additional 5–8% on top of the list price.
See here for more details
More Units in This Building

The Upper Residences at Minami-aoyama
1992
Built
3
Units available
This property is listed by Tokyo Portfolio.
Phone: +81 (0)3-5447-8700
Address: 5-15-12 Minami-azabu, Minato-ku, Tokyo
License number: Governor of Tokyo License (1) No. 107013 / Member of the Ibaraki Prefecture Chapter of the All Japan Real Estate Association / Member of the Tokyo Metropolitan Area Real Estate Fair Trading Council






















