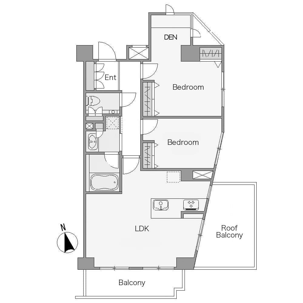
Bathed in natural light from its southeast and southwest exposures, this beautifully renovated corner unit at Tokyu Doel Ars Ebisu offers refined comfort across 64.42㎡. With two bedrooms plus a cozy DEN, it's ideal for remote work or creative pursuits. The open-plan living area flows seamlessly onto a private rooftop balcony, perfect for quiet mornings or intimate evening gatherings under the sky. Situated in the highly coveted Ebisu area, this residence grants effortless access to multiple train lines while being steps away from artisanal cafes, boutique shopping, and Yebisu Garden Place. Loved by creatives, professionals, and international residents alike, Ebisu offers the perfect balance of trend and tranquility.
Listed by Tokyo Portfolio • Acting as intermediary
Listing updated: 2025-06-22
Around This Property
Ebisu
11 min walk
- ShonanShinjuku
Yamanote- Saikyo
- Hibiya
Payment Calculator

Property Price
Interest rate
The average interest rate for a 35-year fixed loan is 1.368%, while the average variable interest rate is 0.470%.
Loan term
Down payment (20%)¥0
Estimated closing fees (5-8%)
¥7,890,000 – ¥12,624,000
↳ Commission (3.3%) + ¥66,000¥5,273,400
TOTAL DUE AT CLOSE
¥7,890,000 – ¥12,624,000| Down payment (20%) | ¥0 |
| Estimated closing fees (5-8%) ↳ Commission (3.3%) + ¥66,000 | ¥7,890,000 – ¥12,624,000 ¥5,273,400 |
| TOTAL DUE AT CLOSE | ¥7,890,000 – ¥12,624,000 |
|---|
As some of these numbers are calculated using the government-assessed value of the property, the actual total upfront cost cannot be known. Generally speaking, we recommend clients prepare an additional 5–8% on top of the list price.
See here for more details
This property is listed by Tokyo Portfolio.
Phone: +81 (0)3-5447-8700
Address: 5-15-12 Minami-azabu, Minato-ku, Tokyo
License number: Governor of Tokyo License (1) No. 107013 / Member of the Ibaraki Prefecture Chapter of the All Japan Real Estate Association / Member of the Tokyo Metropolitan Area Real Estate Fair Trading Council












