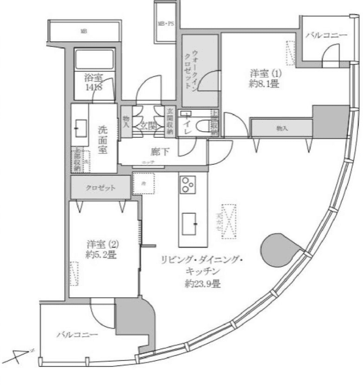
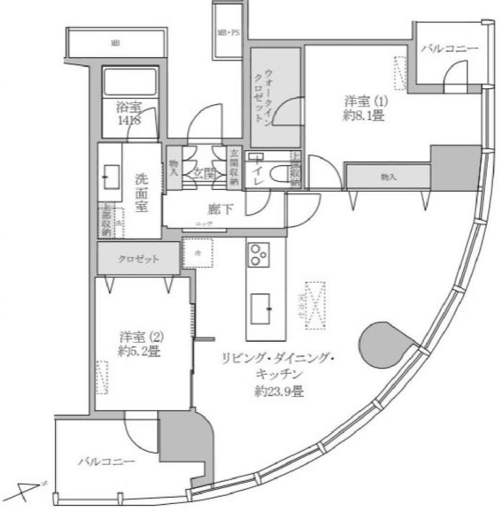
Welcome to unit 2502 at WATERRAS TOWER RESIDENCE, a stunning 2LDK condo that redefines urban living. Spanning 81.58 sqm on the 25th floor, this home offers a perfect blend of comfort and functionality. Step inside to discover a thoughtfully designed layout that maximizes space and natural light. The inviting living area flows seamlessly into a modern kitchen, ideal for both entertaining and daily routines. Enjoy your morning coffee on the private balcony, where you can take in the cityscape. This unit also features designated parking, making city living convenient. Pet lovers will appreciate that both cats and dogs are welcome here. Located just a short walk from Shin-ochanomizu and Ochanomizu stations, commuting is a breeze, allowing you to fully embrace the vibrant lifestyle that awaits you. Experience the perfect harmony of luxury and accessibility at WATERRAS TOWER RESIDENCE.
Listed by Tokyo Portfolio • Acting as intermediary
Listing updated: 2026-01-18
Around This Property
Shin-ochanomizu
3 min walk
- Chiyoda
Ochanomizu
4 min walk
- ChuoSobuLocal
- Chuo Rapid
- Marunouchi
Floorplan


Payment Calculator
Property Price
Interest rate
The average interest rate for a 35-year fixed loan is 1.368%, while the average variable interest rate is 0.470%.
Loan term
Down payment (20%)¥0
Estimated closing fees (5-8%)
¥16,990,000 – ¥27,184,000
↳ Commission (3.3%) + ¥66,000¥11,279,400
TOTAL DUE AT CLOSE
¥16,990,000 – ¥27,184,000| Down payment (20%) | ¥0 |
| Estimated closing fees (5-8%) ↳ Commission (3.3%) + ¥66,000 | ¥16,990,000 – ¥27,184,000 ¥11,279,400 |
| TOTAL DUE AT CLOSE | ¥16,990,000 – ¥27,184,000 |
|---|
As some of these numbers are calculated using the government-assessed value of the property, the actual total upfront cost cannot be known. Generally speaking, we recommend clients prepare an additional 5–8% on top of the list price.
See here for more details
More Units in This Building

WATERRAS TOWER RESIDENCE
2013
Built
1
Units available
This property is listed by Tokyo Portfolio.
Phone: +81 (0)3-5447-8700
Address: 5-15-12 Minami-azabu, Minato-ku, Tokyo
License number: Governor of Tokyo License (1) No. 107013 / Member of the Ibaraki Prefecture Chapter of the All Japan Real Estate Association / Member of the Tokyo Metropolitan Area Real Estate Fair Trading Council





