Price
¥208,000,000
¥30,000
Management fee
3
Beds
1
Baths
111.28
m²
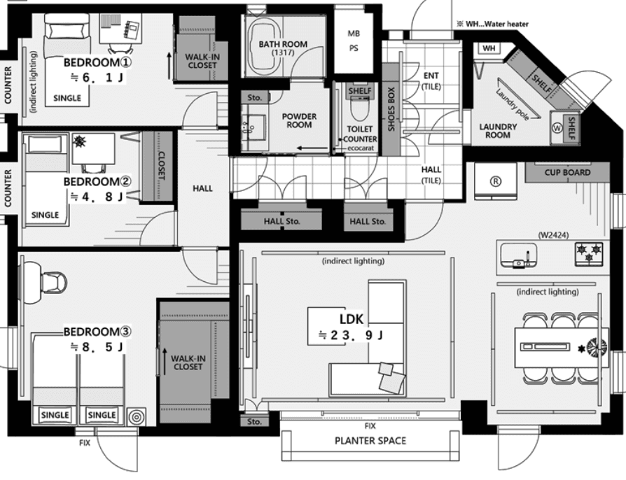
Welcome to unit 304 at Yoyogi Uehara Daiichi Mansions, a spacious 3LDK+2W condo that perfectly balances comfort and functionality. Spanning 111.28 square meters, this thoughtfully designed space features an inviting layout that seamlessly connects living, dining, and kitchen areas, making it ideal for both relaxation and entertaining. Step out onto your private balcony to enjoy fresh air and views, while the generous walk-in closet offers ample storage for your belongings. Modern amenities such as an autolock system, elevator access, delivery box, and monitor intercom enhance your living experience, providing convenience and peace of mind. Located just a 7-minute walk from Yoyogi-Uehara Station on both the Chiyoda and Odakyu lines, and a short 9-minute stroll to Hatagaya Station on the Keio line, commuting is effortless. Experience a lifestyle of comfort and accessibility in this exceptional apartment.
Listed by Tokyo Portfolio • Acting as intermediary
Listing updated: 2026-03-09
Around This Property
Yoyogi-uehara
7 min walk
- Chiyoda
Yoyogi-Uehara
7 min walk
- Odawara
Hatagaya
9 min walk
- KeioNew
Payment Calculator

Property Price
Interest rate
The average interest rate for a 35-year fixed loan is 1.368%, while the average variable interest rate is 0.470%.
Loan term
Down payment (20%)¥0
Estimated closing fees (5-8%)
¥10,400,000 – ¥16,640,000
↳ Commission (3.3%) + ¥66,000¥6,930,000
TOTAL DUE AT CLOSE
¥10,400,000 – ¥16,640,000| Down payment (20%) | ¥0 |
| Estimated closing fees (5-8%) ↳ Commission (3.3%) + ¥66,000 | ¥10,400,000 – ¥16,640,000 ¥6,930,000 |
| TOTAL DUE AT CLOSE | ¥10,400,000 – ¥16,640,000 |
|---|
As some of these numbers are calculated using the government-assessed value of the property, the actual total upfront cost cannot be known. Generally speaking, we recommend clients prepare an additional 5–8% on top of the list price.
See here for more details
This property is listed by Tokyo Portfolio.
Phone: +81 (0)3-5447-8700
Address: 5-15-12 Minami-azabu, Minato-ku, Tokyo
License number: Governor of Tokyo License (1) No. 107013 / Member of the Ibaraki Prefecture Chapter of the All Japan Real Estate Association / Member of the Tokyo Metropolitan Area Real Estate Fair Trading Council













