Welcome to unit 1703 at MFPR Meguro Tower, a stunning 2LDK condo that offers a perfect blend of comfort and functionality. Spanning 78.95 square meters on the 17th floor, this space is designed for modern living. The open layout seamlessly connects the living, dining, and kitchen areas, creating an inviting atmosphere for both relaxation and entertaining. Enjoy the convenience of a walk-in closet, a separate washbasin, and a bathroom equipped with a dryer. The indoor washing machine space adds to the unit's practicality, while air-conditioning ensures year-round comfort. Step out onto your private balcony to take in the views, or take advantage of the building's amenities, including a concierge and bicycle parking. Located just a 7-minute walk from Meguro Station on the Yamanote Line, commuting is a breeze. With additional access to Fudoumae Station, your new home is perfectly positioned for both work and leisure. Experience the ease of life at MFPR Meguro Tower, where every detail i...
Listed by Tokyo Portfolio • Acting as intermediary
Listing updated: 2026-02-14
Around This Property
Meguro
7 min walk
Yamanote
Fudo-mae
17 min walk
- Meguro
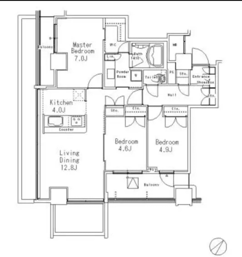
Floorplan


Monthly Fees
¥585,000
Priceper month
Including management fee (¥15,000)¥15,000
•
Insurance (¥0)
3
Beds
1
Baths
76.41
m²
*This is just a guide and may not accurately reflect what the total upfront fees will be. Some management companies will have other unique fees not accounted for here. We will always explain the full breakdown of upfront costs.
**If you have pets and this is a pet friendly property, expect to pay at least one additional month in security deposit.
More Units in This Building

MFPR Meguro Tower
2008
Built
9
Units available

Unit
25011 Bed • 3 Bath
¥2,000,000Price

Unit
14061 Bed • 2 Bath
¥460,000Price

Unit
18061 Bed • 2 Bath
¥470,000Price

Unit
3051 Bed • 2 Bath
¥573,000Price

Unit
6051 Bed • 2 Bath
¥581,000Price

Unit
5051 Bed • 2 Bath
¥554,000Price

Unit
8051 Bed • 2 Bath
¥544,000Price

Unit
15041 Bed • 2 Bath
¥460,000Price

Unit
2021 Bed • 2 Bath
¥524,000Price
This property is listed by Tokyo Portfolio.
Phone: +81 (0)3-5447-8700
Address: 5-15-12 Minami-azabu, Minato-ku, Tokyo
License number: Governor of Tokyo License (1) No. 107013 / Member of the Ibaraki Prefecture Chapter of the All Japan Real Estate Association / Member of the Tokyo Metropolitan Area Real Estate Fair Trading Council










