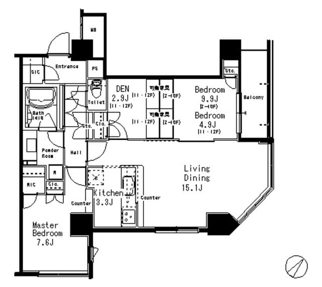
Welcome to unit 305 at MFPR Meguro Tower, a beautifully designed 2SLDK condo that offers 78.95 square meters of modern living. This third-floor unit features a spacious layout that seamlessly integrates comfort and functionality, perfect for daily life. Enjoy the convenience of a separate washbasin and a bathroom equipped with a dryer, alongside an indoor washing machine space. The walk-in closet provides ample storage, while the air-conditioning ensures a comfortable atmosphere year-round. Step out onto your private balcony for a breath of fresh air, or take advantage of the delivery box for added convenience. Located just a 7-minute walk from Meguro Station on the Yamanote line, commuting is a breeze. With amenities like a concierge, bicycle parking, and auto-lock security, this unit supports a lifestyle of ease and comfort. Make this inviting space your new home.
Listed by Tokyo Portfolio • Acting as intermediary
Listing updated: 2026-01-31
Around This Property
Meguro
7 min walk
Yamanote
Fudo-mae
17 min walk
- Meguro
Floor Plans & Monthly Fees

¥573,000
Priceper month
Including management fee (¥0)¥0
•
Insurance (¥0)
2
Beds
1
Baths
78.95
m²
*This is just a guide and may not accurately reflect what the total upfront fees will be. Some management companies will have other unique fees not accounted for here. We will always explain the full breakdown of upfront costs.
**If you have pets and this is a pet friendly property, expect to pay at least one additional month in security deposit.

More Units in This Building

MFPR Meguro Tower
2008
Built
5
Units on sale
This property is listed by Tokyo Portfolio.
Phone: +81 (0)3-5447-8700
Address: 5-15-12 Minami-azabu, Minato-ku, Tokyo
License number: Governor of Tokyo License (1) No. 107013 / Member of the Ibaraki Prefecture Chapter of the All Japan Real Estate Association / Member of the Tokyo Metropolitan Area Real Estate Fair Trading Council















