















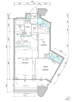
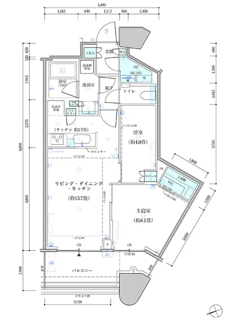
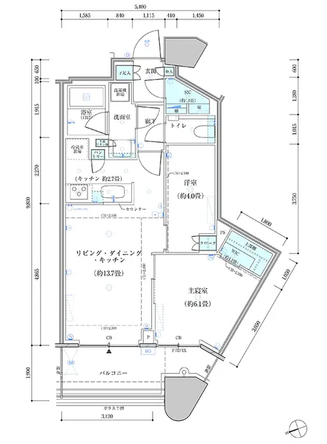
Rising within the modern skyline of Park Tower Kachidoki, this elegant 2LDK residence spans 55.24㎡, offering a perfect balance of style and functionality. Designed with contemporary finishes and equipped with advanced home systems, the unit provides effortless comfort. Expansive windows draw in natural light, creating a warm, inviting living space ideal for both relaxation and entertaining. Situated in Kachidoki, one of Tokyo’s fastest-growing waterfront districts, residents enjoy a calm, livable atmosphere just minutes from the energy of Ginza and Tokyo Bay. With riverside promenades, local dining, and family-friendly parks nearby, this location appeals equally to professionals seeking convenience and families desiring tranquility.
Listed by Tokyo Portfolio • Acting as intermediary
Listing updated: 2025-09-24
Around This Property
Kachidoki
2 min walk
- Oedo
Floor Plans & Monthly Fees

¥370,000
Priceper month
Including management fee (-)¥0
•
Insurance (¥0)
2
Beds
1
Baths
55.24
m²

More Units in This Building

Park Tower Kachidoki South
2023
Built
10
Units on sale

Unit
381 Bed • 2 Bath
¥216,800,000Price

Unit
50031 Bed • 3 Bath
¥480,000Price

Unit
571 Bed • 2 Bath
¥368,000,000Price

Unit
581 Bed • 3 Bath
¥598,000,000Price

Unit
10161 Bed • 2 Bath
¥509,000Price

Unit
10081 Bed • 2 Bath
¥380,000Price

Unit
5131 Bed • 2 Bath
¥399,000Price

Unit
4081 Bed • 2 Bath
¥369,000Price

Unit
38F1 Bed • 2 Bath
¥268,000,000Price

Unit
57-11 Bed • 2 Bath
¥448,000,000Price
This property is listed by Tokyo Portfolio.
Phone: +81 (0)3-5447-8700
Address: 5-15-12 Minami-azabu, Minato-ku, Tokyo
License number: Governor of Tokyo License (1) No. 107013 / Member of the Ibaraki Prefecture Chapter of the All Japan Real Estate Association / Member of the Tokyo Metropolitan Area Real Estate Fair Trading Council





























