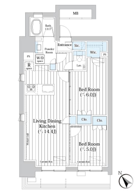
Situated on the 7th floor, this elegant 2LDK residence with a walk-in closet (WIC) offers 57.51 square meters of well-designed living space. The layout pairs a bright, open living and dining area with two private bedrooms, providing flexibility for couples, professionals, or a home office setup. Ample storage, including the walk-in closet, enhances practicality without compromising comfort, while the floor placement ensures privacy and natural light throughout the day. Set near Tsukiji Station, the neighborhood combines vibrant markets, cafés, and dining with excellent transport connections. This home is ideal for residents seeking a convenient, well-connected Tokyo lifestyle with a thoughtful, modern interior.
Listed by Tokyo Portfolio • Acting as intermediary
Listing updated: 2025-12-27
Around This Property
Tsukiji
2 min walk
- Hibiya
Shintomicho
7 min walk
- Yurakucho
Higashi-ginza
9 min walk
- Hibiya
Floor Plans & Monthly Fees

¥343,000
Priceper month
Including management fee (¥0)¥0
•
Insurance (¥0)
2
Beds
1
Baths
57.51
m²
*This is just a guide and may not accurately reflect what the total upfront fees will be. Some management companies will have other unique fees not accounted for here. We will always explain the full breakdown of upfront costs.
**If you have pets and this is a pet friendly property, expect to pay at least one additional month in security deposit.

This property is listed by Tokyo Portfolio.
Phone: +81 (0)3-5447-8700
Address: 5-15-12 Minami-azabu, Minato-ku, Tokyo
License number: Governor of Tokyo License (1) No. 107013 / Member of the Ibaraki Prefecture Chapter of the All Japan Real Estate Association / Member of the Tokyo Metropolitan Area Real Estate Fair Trading Council









