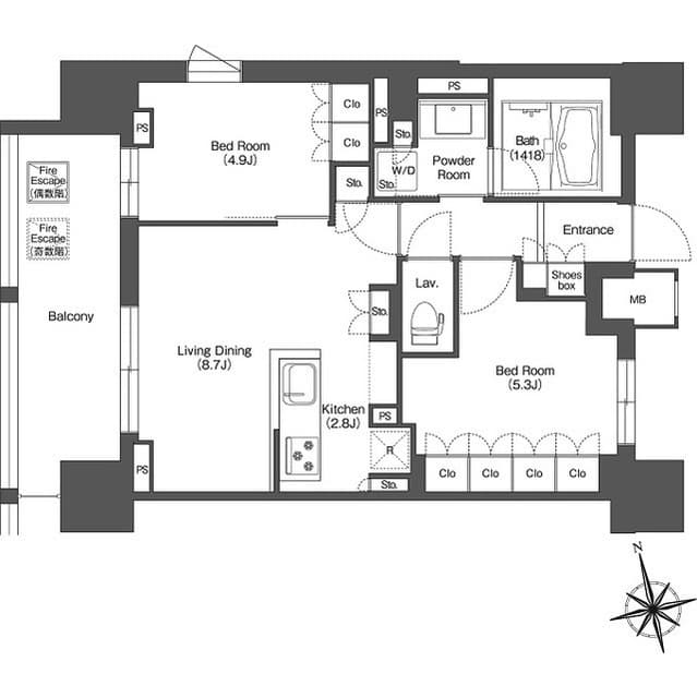
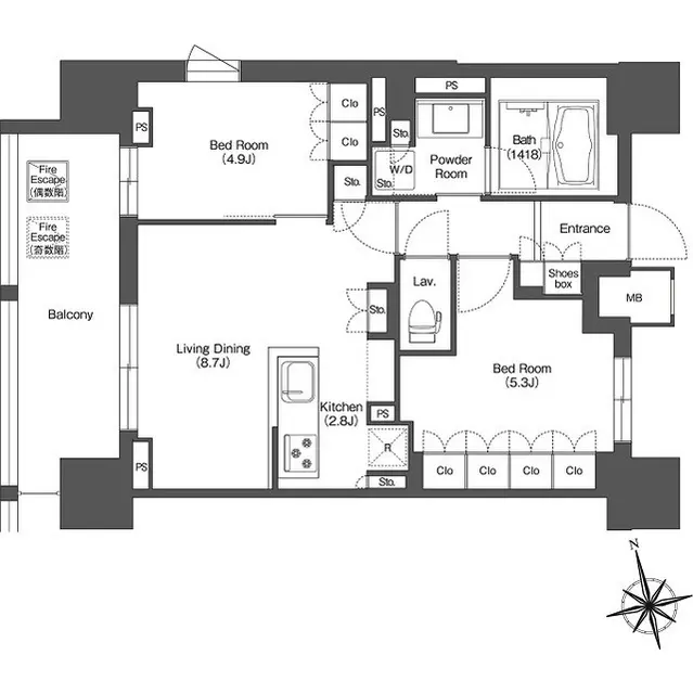
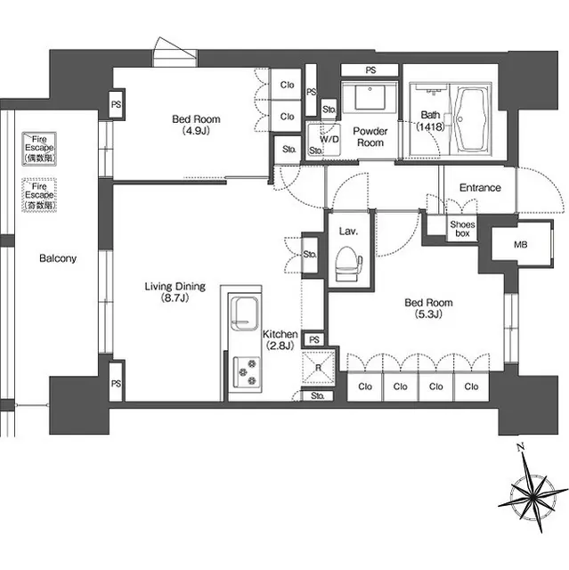
Positioned on the 14th floor, this refined 2LDK residence offers 54 square meters of efficient, elevated living. The layout balances an open living and dining area with two private rooms, allowing flexibility for couples, professionals, or a home office arrangement. The higher floor placement enhances openness and privacy, creating a calm living environment well above the city’s activity. Clean proportions make the space easy to furnish, supporting both everyday comfort and functionality. The surrounding neighborhood provides excellent access to transport, daily shopping, and dining options. It is well suited for residents seeking a well-connected Tokyo lifestyle with a sense of height, clarity, and urban ease.
Listed by Tokyo Portfolio • Acting as intermediary
Listing updated: 2025-12-27
Around This Property
Nishi-shinjuku
5 min walk
- Marunouchi
Shinjuku-nishiguchi
9 min walk
- Oedo
Floor Plans & Monthly Fees

¥303,000
Priceper month
Including management fee (¥0)¥0
•
Insurance (¥0)
2
Beds
1
Baths
54
m²
*This is just a guide and may not accurately reflect what the total upfront fees will be. Some management companies will have other unique fees not accounted for here. We will always explain the full breakdown of upfront costs.
**If you have pets and this is a pet friendly property, expect to pay at least one additional month in security deposit.

This property is listed by Tokyo Portfolio.
Phone: +81 (0)3-5447-8700
Address: 5-15-12 Minami-azabu, Minato-ku, Tokyo
License number: Governor of Tokyo License (1) No. 107013 / Member of the Ibaraki Prefecture Chapter of the All Japan Real Estate Association / Member of the Tokyo Metropolitan Area Real Estate Fair Trading Council










