





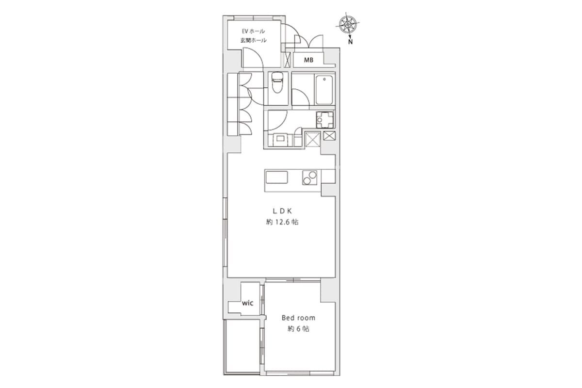
Nestled in the vibrant heart of Azabujuban, this stylish 1LDK residence at Casa Succeed Azabujuban offers refined comfort across 50.36㎡. Floor-to-ceiling windows flood the home with natural light, creating a sense of openness rarely found in central Tokyo. The modern open-plan kitchen, complete with a sleek counter design, makes entertaining effortless, while the bathroom features a dryer and a spacious vanity with a three-sided mirror for everyday convenience. Azabujuban is celebrated for its blend of tradition and cosmopolitan flair, with charming local eateries, international dining, and boutique shopping lining its lively streets. Popular with professionals and couples, the neighborhood balances sophisticated living with a warm community atmosphere, just moments from Roppongi and Tokyo Tower.
Listed by Tokyo Portfolio • Acting as intermediary
Listing updated: 2025-09-14
Around This Property
- Azabu-juban- 2 min walk - Oedo
- Namboku
 
- Nishimachi International School- Ages 5-14 years | Walk 10 mins by foot 
- The British School Tokyo (Azabudai Hills)- Ages 3-18 years | Walk 7 mins by foot 
- The Montessori School of Tokyo (Grove Campus)- Ages 1-15 years | Walk 10 mins by foot 
Floor Plans & Monthly Fees

¥326,000
Priceper month
Including management fee (-)¥0
•
Insurance (¥0)
1
Beds
1
Baths
50.36
m²

More Units in This Building

Casa Succeed Azabujuban
2017
Built
1
Units on sale
This property is listed by Tokyo Portfolio.
Phone: +81 (0)3-5447-8700
Address: 5-15-12 Minami-azabu, Minato-ku, Tokyo
License number: Governor of Tokyo License (1) No. 107013 / Member of the Ibaraki Prefecture Chapter of the All Japan Real Estate Association / Member of the Tokyo Metropolitan Area Real Estate Fair Trading Council





















