







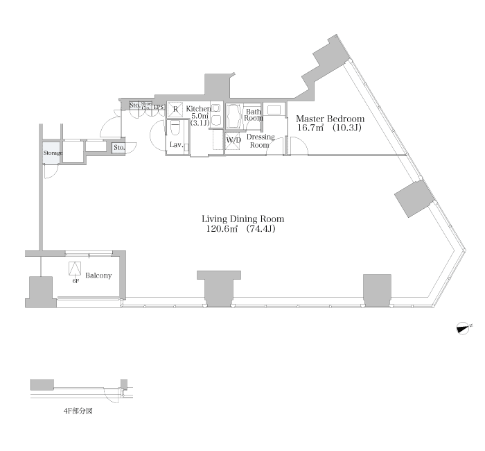
Soaring high above the city in Central Park Tower La Tour Shinjuku, this expansive 153.6㎡ one-bedroom residence redefines open-plan luxury. With flexible zoning and a 300kg/m² floor load, the space welcomes bespoke furniture and creative layouts—ideal for art collectors, minimalists, or those who crave fluid design. Discreet downlighting sets a refined ambiance, highlighting the clean architectural lines and vast scale of the interior. Set in the vibrant heart of Shinjuku, this tower offers immediate access to world-class shopping, fine dining, and lush escapes like Shinjuku Central Park. Perfect for cosmopolitan professionals and creatives seeking prestige, convenience, and inspired metropolitan living.
Listed by Tokyo Portfolio • Acting as intermediary
Listing updated: 2025-05-18
Around This Property
Tochomae
4 min walk
- Oedo
Nishi-shinjuku
7 min walk
- Marunouchi
Shinjuku
13 min walk
- Oedo
Floor Plans & Monthly Fees

¥1,120,000
Priceper month
Including management fee (-)¥0
•
Insurance (¥0)
1
Beds
1
Baths
153.6
m²

This property is listed by Tokyo Portfolio.
Phone: +81 (0)3-5447-8700
Address: 5-15-12 Minami-azabu, Minato-ku, Tokyo
License number: Governor of Tokyo License (1) No. 107013 / Member of the Ibaraki Prefecture Chapter of the All Japan Real Estate Association / Member of the Tokyo Metropolitan Area Real Estate Fair Trading Council


















