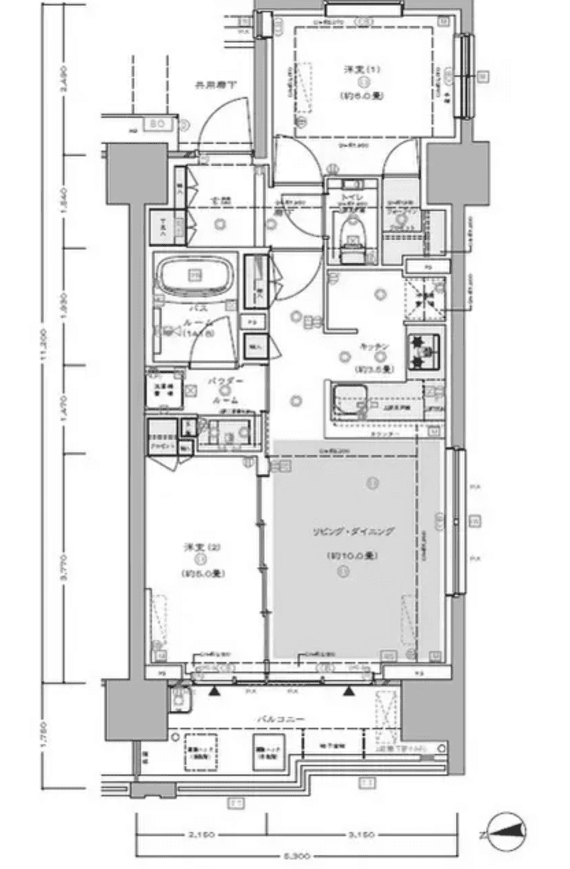
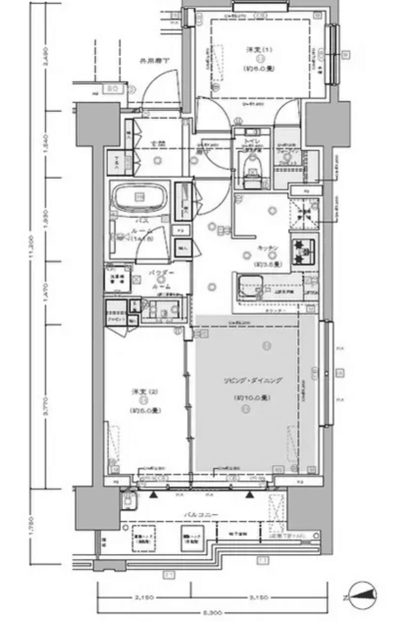
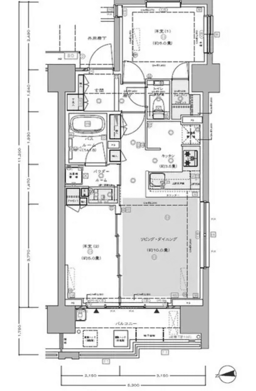
Welcome to unit 0806 at Central Place Shinjuku Gyoenmae, a beautifully designed 2LDK condo that offers 54.67 square meters of modern living. This corner unit bathes in natural light, enhancing the open layout that seamlessly connects the living, dining, and kitchen areas. Enjoy the comfort of floor heating during cooler months and the convenience of a separate bathroom and toilet. The well-equipped kitchen features a reheating function, perfect for quick meals. Located just a short walk from Shinjuku-gyoemmae station, with easy access to Marunouchi line, your daily commute becomes effortless. Experience urban living at its finest in this inviting space.
Listed by Tokyo Portfolio • Acting as intermediary
Listing updated: 2026-03-09
Around This Property
Shinjuku-gyoemmae
4 min walk
- Marunouchi
Shinjuku-sanchome
7 min walk
- Marunouchi
Yotsuya-sanchome
15 min walk
- Marunouchi
Floor Plans & Monthly Fees

¥345,000
Priceper month
Including management fee (¥25,000)¥25,000
•
Insurance (¥0)
2
Beds
1
Baths
54.67
m²
*This is just a guide and may not accurately reflect what the total upfront fees will be. Some management companies will have other unique fees not accounted for here. We will always explain the full breakdown of upfront costs.
**If you have pets and this is a pet friendly property, expect to pay at least one additional month in security deposit.

This property is listed by Tokyo Portfolio.
Phone: +81 (0)3-5447-8700
Address: 5-15-12 Minami-azabu, Minato-ku, Tokyo
License number: Governor of Tokyo License (1) No. 107013 / Member of the Ibaraki Prefecture Chapter of the All Japan Real Estate Association / Member of the Tokyo Metropolitan Area Real Estate Fair Trading Council











