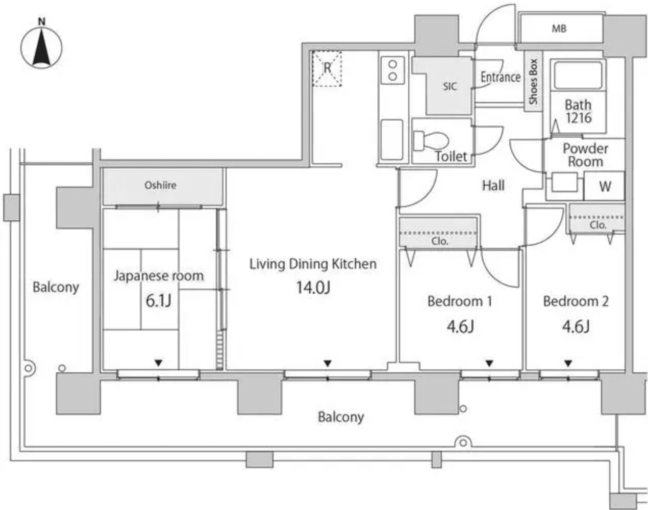
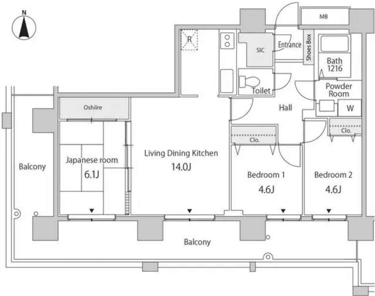
Welcome to unit 906 at Cerulean Homes Kachidoki, a beautifully designed 3LDK condo that offers 69.95 square meters of modern living. Situated on the 9th floor, this unit features a thoughtful layout that seamlessly blends comfort and functionality, perfect for daily life. The spacious living area is complemented by a system kitchen equipped with a reheating function, making meal prep a breeze. Enjoy the convenience of a separate washbasin and a bathroom dryer, while the indoor washing machine space adds to the unit's practicality. Step out onto your private balcony to unwind, and take advantage of amenities such as air conditioning and an auto-lock system for peace of mind. With easy access to Kachidoki Station just a short walk away, commuting is effortless, allowing you to fully embrace the vibrant lifestyle this location offers. Experience the perfect blend of comfort and convenience in your new home.
Listed by Tokyo Portfolio • Acting as intermediary
Listing updated: 2026-04-18
Around This Property
Kachidoki
3 min walk
- Oedo
Tsukiji
18 min walk
- Hibiya
Tsukijishijo
18 min walk
- Oedo
Floor Plans & Monthly Fees

¥313,000
Priceper month
Including management fee (¥0)¥0
•
Insurance (¥0)
3
Beds
1
Baths
69.95
m²
*This is just a guide and may not accurately reflect what the total upfront fees will be. Some management companies will have other unique fees not accounted for here. We will always explain the full breakdown of upfront costs.
**If you have pets and this is a pet friendly property, expect to pay at least one additional month in security deposit.

More Units in This Building

Cerulean Homes Kachidoki
2001
Built
1
Units on sale
This property is listed by Tokyo Portfolio.
Phone: +81 (0)3-5447-8700
Address: 5-15-12 Minami-azabu, Minato-ku, Tokyo
License number: Governor of Tokyo License (1) No. 107013 / Member of the Ibaraki Prefecture Chapter of the All Japan Real Estate Association / Member of the Tokyo Metropolitan Area Real Estate Fair Trading Council











