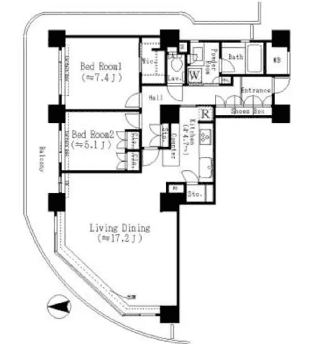
Welcome to unit 1812 in the prestigious River Point Tower, where modern living meets comfort. This spacious 3LDK condo spans 86.84 square meters, thoughtfully designed to enhance your daily life. The open layout seamlessly connects the living, dining, and kitchen areas, creating a warm atmosphere perfect for entertaining or quiet evenings at home. The system kitchen, equipped with a dishwasher and reheating function, makes meal preparation a delight. Enjoy the convenience of a separate washbasin and a bathroom dryer, ensuring your routine is both efficient and comfortable. Step onto your private balcony to savor the views, or retreat to the walk-in closet for ample storage. With air-conditioning and an auto-lock system, your comfort and security are prioritized. Located just a short walk from Tsukishima Station, as well as other transport options, commuting is a breeze. Experience the blend of luxury and functionality in this exceptional apartment, where every detail is designed f...
Listed by Tokyo Portfolio • Acting as intermediary
Listing updated: 2026-03-09
Around This Property
Tsukishima
6 min walk
- Yurakucho
Hatchobori
11 min walk
- Hibiya
Floor Plans & Monthly Fees

¥428,000
Priceper month
Including management fee (¥0)¥0
•
Insurance (¥0)
2
Beds
1
Baths
81.2
m²
*This is just a guide and may not accurately reflect what the total upfront fees will be. Some management companies will have other unique fees not accounted for here. We will always explain the full breakdown of upfront costs.
**If you have pets and this is a pet friendly property, expect to pay at least one additional month in security deposit.

More Units in This Building

River Point Tower
1989
Built
5
Units available
This property is listed by Tokyo Portfolio.
Phone: +81 (0)3-5447-8700
Address: 5-15-12 Minami-azabu, Minato-ku, Tokyo
License number: Governor of Tokyo License (1) No. 107013 / Member of the Ibaraki Prefecture Chapter of the All Japan Real Estate Association / Member of the Tokyo Metropolitan Area Real Estate Fair Trading Council















