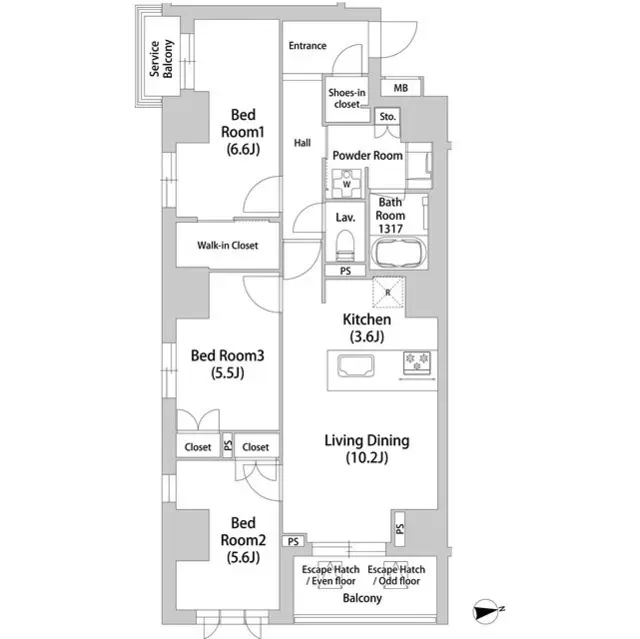
Welcome to Hiroo Villa Square, where comfort meets functionality in this inviting 3LDK condo unit, 0402. Spanning 70.19 square meters, this well-designed space offers a seamless flow between living, dining, and kitchen areas, perfect for both relaxation and entertaining. The modern amenities enhance daily life, featuring a reheating function for quick meals, a bathroom dryer for added convenience, and a separate washbasin for efficiency. Enjoy the luxury of a separate bathroom and toilet, ensuring privacy and comfort. Located just an 18-minute walk from Hiro-o Station on the Hibiya Line, this unit combines urban accessibility with a serene living environment. Experience the perfect blend of style and practicality at Hiroo Villa Square.
Listed by Tokyo Portfolio • Acting as intermediary
Listing updated: 2026-03-31
Around This Property
Hiro-o
18 min walk
- Hibiya
Floor Plans & Monthly Fees

¥380,000
Priceper month
Including management fee (¥15,000)¥15,000
•
Insurance (¥0)
3
Beds
1
Baths
70.19
m²
*This is just a guide and may not accurately reflect what the total upfront fees will be. Some management companies will have other unique fees not accounted for here. We will always explain the full breakdown of upfront costs.
**If you have pets and this is a pet friendly property, expect to pay at least one additional month in security deposit.

More Units in This Building

Hiroo Villa Square
2020
Built
1
Units on sale
This property is listed by Tokyo Portfolio.
Phone: +81 (0)3-5447-8700
Address: 5-15-12 Minami-azabu, Minato-ku, Tokyo
License number: Governor of Tokyo License (1) No. 107013 / Member of the Ibaraki Prefecture Chapter of the All Japan Real Estate Association / Member of the Tokyo Metropolitan Area Real Estate Fair Trading Council












