













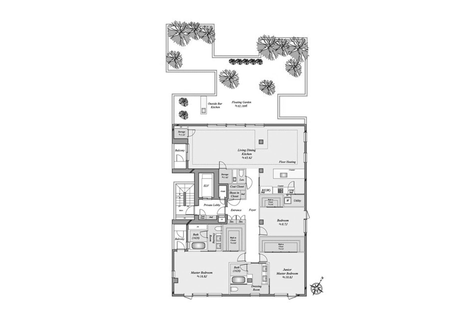
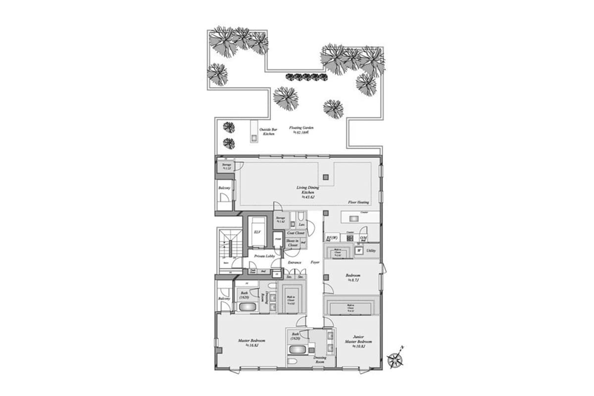
Nestled between the sophistication of Aoyama and the vibrancy of Shibuya, HILLPEAK TOKIWAMATSU offers an exceptional 3LDK residence spanning 199.12㎡—a rare haven of space and privacy in central Tokyo. The expansive living and dining area opens seamlessly to a private garden, creating a natural flow between indoor elegance and outdoor tranquility. A dedicated wine cellar and abundant storage make this home ideal for both entertaining and refined daily living. The Tokiwamatsu neighborhood blends quiet residential charm with effortless access to the city’s cultural pulse. Trendy cafés, designer boutiques, and international schools are all nearby, making it the perfect sanctuary for families and professionals who value both sophistication and convenience.
Listed by Tokyo Portfolio • Acting as intermediary
Listing updated: 2025-11-10
Around This Property
Shibuya
12 min walk
- Saikyo Kawagoe
Yamanote- ShonanShinjuku
- Inokashira
- Hanzomon
- Ginza
- Fukutoshin
- Toyoko
- Den En Toshi
Floor Plans & Monthly Fees

¥3,000,000
Priceper month
Including management fee (-)¥0
•
Insurance (¥0)
3
Beds
2
Baths
199.12
m²

More Units in This Building

HILLPEAK TOKIWAMATSU
2023
Built
1
Units on sale
This property is listed by Tokyo Portfolio.
Phone: +81 (0)3-5447-8700
Address: 5-15-12 Minami-azabu, Minato-ku, Tokyo
License number: Governor of Tokyo License (1) No. 107013 / Member of the Ibaraki Prefecture Chapter of the All Japan Real Estate Association / Member of the Tokyo Metropolitan Area Real Estate Fair Trading Council

































