










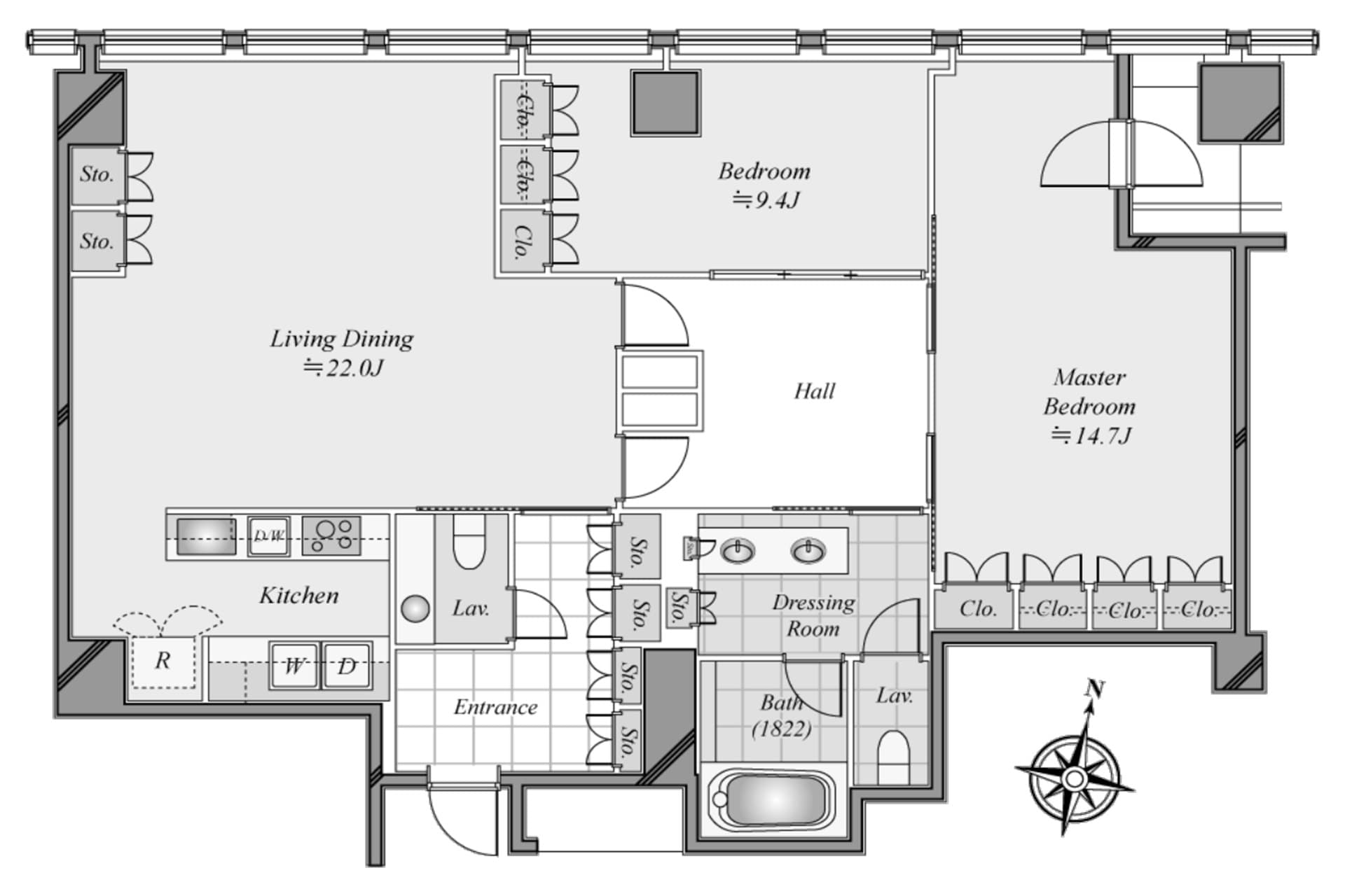
Elevated above the city in Hirakawacho Mori Tower Residence, this meticulously maintained 2LDK spans 128.96㎡, offering an airy, light-filled retreat in the heart of Tokyo. Each bedroom exceeds 13㎡, providing spacious private sanctuaries, while the expansive living-dining area invites both elegant entertaining and quiet relaxation. Secure parking, including a high-roof space, adds urban convenience, completing a lifestyle of effortless comfort. Nestled near Nagatacho, the residence places you steps from political and business hubs while retaining a serene atmosphere. Tree-lined streets, chic cafés, and easy access to Hibiya Park appeal to professionals, couples, or small families seeking both cosmopolitan energy and tranquil residential charm.
Listed by Tokyo Portfolio • Acting as intermediary
Listing updated: 2025-10-30
Around This Property
Nagatacho
2 min walk
- Hanzomon
- Namboku
- Yurakucho
Floor Plans & Monthly Fees

¥950,000
Priceper month
Including management fee (-)¥0
•
Insurance (¥0)
2
Beds
1
Baths
128.96
m²

This property is listed by Tokyo Portfolio.
Phone: +81 (0)3-5447-8700
Address: 5-15-12 Minami-azabu, Minato-ku, Tokyo
License number: Governor of Tokyo License (1) No. 107013 / Member of the Ibaraki Prefecture Chapter of the All Japan Real Estate Association / Member of the Tokyo Metropolitan Area Real Estate Fair Trading Council
























