






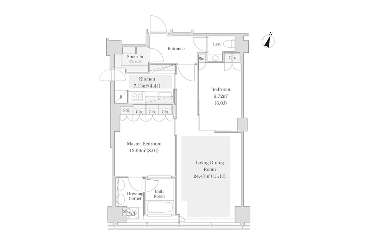
Nestled in the vibrant enclave of Aobadai, La Tour Aobadai presents a refined 2LDK residence spanning 78.18㎡, thoughtfully designed for comfort and modern living. Sunlit interiors feature generous storage and flexible layouts, while pet-friendly policies ensure your companions feel at home. Concierge services add a layer of convenience, catering to everyday needs and enhancing a sophisticated lifestyle. Located just minutes from Ikejiri-Ohashi Station, this dynamic neighborhood balances city accessibility with a sense of community. Cafés, boutique shops, and serene streets make it ideal for professionals, couples, and small families seeking both convenience and tranquility in a cosmopolitan setting.
Listed by Tokyo Portfolio • Acting as intermediary
Listing updated: 2025-10-19
Around This Property
Ikejiriohashi
7 min walk
- Den En Toshi
Floor Plans & Monthly Fees

¥790,000
Priceper month
Including management fee (-)¥0
•
Insurance (¥0)
2
Beds
1
Baths
78.18
m²

More Units in This Building

La Tour Aobadai
2009
Built
7
Units on sale
This property is listed by Tokyo Portfolio.
Phone: +81 (0)3-5447-8700
Address: 5-15-12 Minami-azabu, Minato-ku, Tokyo
License number: Governor of Tokyo License (1) No. 107013 / Member of the Ibaraki Prefecture Chapter of the All Japan Real Estate Association / Member of the Tokyo Metropolitan Area Real Estate Fair Trading Council





























