







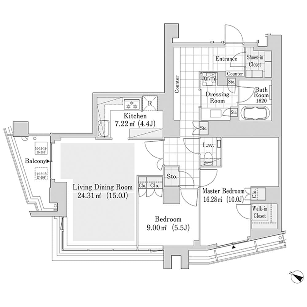
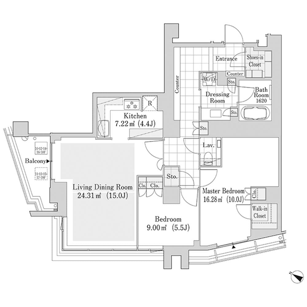
Experience refined city living in La Tour SHIBUYA JINNAN, a striking 2-bedroom, 90.7㎡ residence that blends tranquility with Tokyo’s vibrant pulse. With only 2–3 units per floor, this home offers exceptional privacy and comfort. The expansive layout features a sleek modern design, a generous walk-in closet, and pet-friendly amenities—perfect for those seeking both style and sanctuary in the heart of the city. Located just minutes from Shibuya and Harajuku, this area is a hub for creativity, culture, and convenience. With Yoyogi Park nearby, it’s ideal for active professionals, couples, or small families who crave green space without compromising on urban energy.
Listed by Tokyo Portfolio • Acting as intermediary
Listing updated: 2025-07-07
Around This Property
Shibuya
10 min walk
- ShonanShinjuku
Yamanote- Saikyo Kawagoe
- Inokashira
- Ginza
- Fukutoshin
- Hanzomon
- Den En Toshi
- Toyoko
Harajuku
9 min walk
Yamanote
The British School Tokyo (Shibuya)
Ages 3-18 years | Walk 9 mins by foot
Floor Plans & Monthly Fees

¥900,000
Priceper month
Including management fee (-)¥0
•
Insurance (¥0)
2
Beds
1
Baths
90.7
m²

More Units in This Building

La Tour Shibuya Jinnan
2019
Built
4
Units on sale
This property is listed by Tokyo Portfolio.
Phone: +81 (0)3-5447-8700
Address: 5-15-12 Minami-azabu, Minato-ku, Tokyo
License number: Governor of Tokyo License (1) No. 107013 / Member of the Ibaraki Prefecture Chapter of the All Japan Real Estate Association / Member of the Tokyo Metropolitan Area Real Estate Fair Trading Council





















