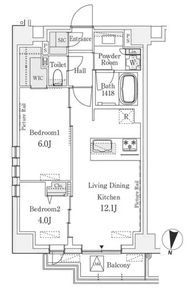
Welcome to unit 402 at LeFiel Orb Azabu Sendai-zaka, a beautifully designed 2LDK condo that offers a perfect blend of comfort and functionality. Spanning 52.72 sqm, this fourth-floor residence features a spacious layout that invites natural light and enhances daily living. The modern system kitchen, complete with a dishwasher and reheating function, makes meal preparation a delight. Enjoy the convenience of a separate washbasin and a bathroom equipped with a dryer, ensuring your routines are seamless. The walk-in closet provides ample storage, while the air-conditioning keeps the space comfortable year-round. Step out onto your private balcony to unwind after a long day. With an autolock system for added security, this unit prioritizes your peace of mind. Located just an 8-minute walk from Azabu-juban station, commuting is effortless, connecting you to the vibrant heart of the city. Experience the perfect urban lifestyle in this inviting home.
Listed by Tokyo Portfolio • Acting as intermediary
Listing updated: 2026-01-29
Around This Property
Azabu-juban
8 min walk
- Namboku
Hiro-o
13 min walk
- Hibiya
Akabanebashi
14 min walk
- Oedo
Floor Plans & Monthly Fees

¥369,000
Priceper month
Including management fee (¥0)¥0
•
Insurance (¥0)
2
Beds
1
Baths
52.72
m²
*This is just a guide and may not accurately reflect what the total upfront fees will be. Some management companies will have other unique fees not accounted for here. We will always explain the full breakdown of upfront costs.
**If you have pets and this is a pet friendly property, expect to pay at least one additional month in security deposit.

This property is listed by Tokyo Portfolio.
Phone: +81 (0)3-5447-8700
Address: 5-15-12 Minami-azabu, Minato-ku, Tokyo
License number: Governor of Tokyo License (1) No. 107013 / Member of the Ibaraki Prefecture Chapter of the All Japan Real Estate Association / Member of the Tokyo Metropolitan Area Real Estate Fair Trading Council










