

























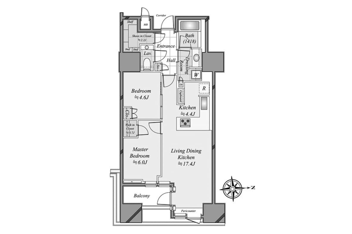
Rising within the sought-after Mita Garden Hills East Hill, this elegant 2LDK residence offers 67.59㎡ of modern comfort. The spacious LDK is designed for both relaxation and entertaining, complemented by abundant storage solutions to keep daily life beautifully organized. Thoughtful finishes, serene interiors, and pet-friendly living make this a warm and welcoming home for couples or small families. Set in the refined neighborhood of Mita, residents enjoy a balance of tranquility and convenience. Nearby Azabu-Juban’s charming streets, international schools, and leafy parks create an ideal setting for professionals and families alike, while easy access to central Tokyo ensures seamless connectivity.
Listed by Tokyo Portfolio • Acting as intermediary
Listing updated: 2025-09-01
Around This Property
Azabu-juban
7 min walk
- Oedo
- Namboku
Shibakoen
11 min walk
- Mita
The British School Tokyo (Azabudai Hills)
Ages 3-18 years | By Car 6 mins by foot
Floor Plans & Monthly Fees

¥650,000
Priceper month
Including management fee (-)¥0
•
Insurance (¥0)
2
Beds
1
Baths
67.59
m²

More Units in This Building

Mita Garden Hills
2025
Built
30
Units on sale

Unit
13131 Bed • 2 Bath
¥720,000Price

Unit
Park Mansion 4081 Bed • 2 Bath
¥1,290,000Price

Unit
EAST HILL 141 Bed • 2 Bath
¥1,280,000,000Price

Unit
North Hill 10191 Bed • 2 Bath
¥1,000,000Price

Unit
East Hill 13051 Bed • 2 Bath
¥1,230,000Price

Unit
Park Mansion 6F1 Bed • 2 Bath
¥1,600,000,000Price

Unit
North Hill 8061 Bed • 2 Bath
¥1,700,000Price

Unit
south hill 81 Bed • 3 Bath
¥920,000,000Price

Unit
South Hill 13121 Bed • 2 Bath
¥690,000Price

Unit
North Hill 13F1 Bed • 2 Bath
¥698,000,000Price

Unit
EAST HILL 41 Bed • 3 Bath
¥854,280,000Price

Unit
EAST HILL 8F1 Bed • 3 Bath
¥692,160,000Price

Unit
South Hill 4101 Bed • 3 Bath
¥950,000Price

Unit
North Hill 6031 Bed • 2 Bath
¥680,000Price

Unit
East hill 101 Bed • 3 Bath
¥545,000,000Price

Unit
South Hill 13101 Bed • 3 Bath
¥1,100,000Price

Unit
East Hill 3141 Bed • 2 Bath
¥750,000Price

Unit
North Hill 13021 Bed • 2 Bath
¥880,000Price

Unit
North Hill 3031 Bed • 2 Bath
¥850,000Price

Unit
North Hill 4031 Bed • 2 Bath
¥650,000Price

Unit
East Hill 9081 Bed • 2 Bath
¥660,000Price

Unit
North Hill 12151 Bed • 1 Bath
¥400,000Price

Unit
North Hill 7141 Bed • 1 Bath
¥340,000Price

Unit
South Hill 8101 Bed • 3 Bath
¥1,100,000Price

Unit
East Hill 101 Bed • 2 Bath
¥408,800,000Price

Unit
Park Mansion 81 Bed • 2 Bath
¥1,198,000,000Price

Unit
Park Mansion 111.5 Bed • 3 Bath
¥1,758,000,000Price

Unit
Park Mansion 8-11 Bed • 3 Bath
¥1,340,000,000Price

Unit
13F1 Bed • 2 Bath
¥698,000,000Price

Unit
Park Mansion 8011 Bed • 3 Bath
¥950,000,000Price
This property is listed by Tokyo Portfolio.
Phone: +81 (0)3-5447-8700
Address: 5-15-12 Minami-azabu, Minato-ku, Tokyo
License number: Governor of Tokyo License (1) No. 107013 / Member of the Ibaraki Prefecture Chapter of the All Japan Real Estate Association / Member of the Tokyo Metropolitan Area Real Estate Fair Trading Council





















