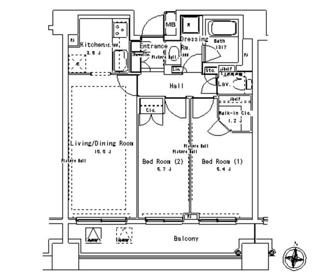
Welcome to unit 913 at Park Axis Ochanomizu Stage, a beautifully designed 2LDK condo that offers 58.51 square meters of modern living space. Located on the 9th floor, this unit features a thoughtful layout that maximizes comfort and functionality. The heart of the home is a stylish system kitchen equipped with a reheating function, perfect for preparing meals or entertaining guests. Enjoy the convenience of an indoor washing machine space and a separate bathroom and toilet, enhancing daily routines. Step out onto your private balcony to savor fresh air, while air-conditioning and floor heating ensure year-round comfort. The building offers a range of amenities, including a concierge service, bicycle parking, and an auto-lock system for added security. With Ochanomizu Station just an 8-minute walk away and other major stations within easy reach, commuting is a breeze. Experience urban living at its finest in this inviting space, where every detail supports a harmonious lifestyle.
Listed by Tokyo Portfolio • Acting as intermediary
Listing updated: 2026-02-23
Around This Property
Ochanomizu
8 min walk
- Chuo Rapid
Akihabara
10 min walk
Yamanote
Suehirocho
6 min walk
- Ginza
Floor Plans & Monthly Fees

¥310,000
Priceper month
Including management fee (¥12,000)¥12,000
•
Insurance (¥0)
2
Beds
1
Baths
58.51
m²
*This is just a guide and may not accurately reflect what the total upfront fees will be. Some management companies will have other unique fees not accounted for here. We will always explain the full breakdown of upfront costs.
**If you have pets and this is a pet friendly property, expect to pay at least one additional month in security deposit.

This property is listed by Tokyo Portfolio.
Phone: +81 (0)3-5447-8700
Address: 5-15-12 Minami-azabu, Minato-ku, Tokyo
License number: Governor of Tokyo License (1) No. 107013 / Member of the Ibaraki Prefecture Chapter of the All Japan Real Estate Association / Member of the Tokyo Metropolitan Area Real Estate Fair Trading Council










