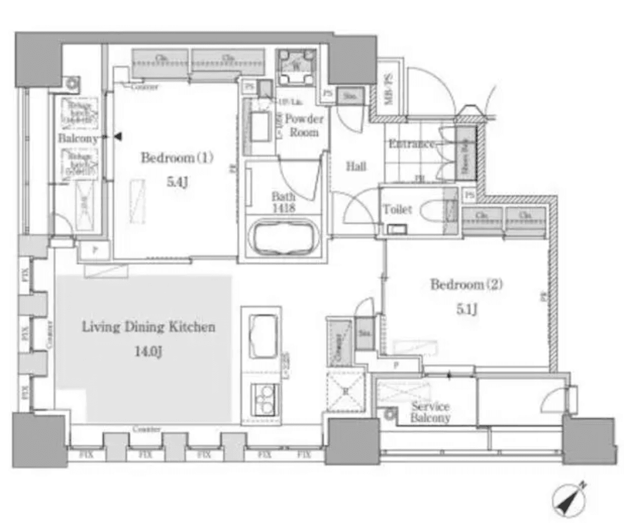
Welcome to unit 901 at Park Axis Tsukishima Mature Style, a beautifully designed 2LDK condo that perfectly balances comfort and functionality. Spanning 57.03 square meters, this ninth-floor residence features an inviting layout that seamlessly connects living, dining, and kitchen areas, creating an ideal space for both relaxation and entertaining. The modern system kitchen, equipped with an IH cooking heater and dishwasher, makes meal preparation a joy. Enjoy the convenience of a separate washbasin and a bathroom dryer, while the indoor washing machine space adds to the unit's practicality. Step out onto your private balcony to savor morning coffee or unwind in the evening. With air conditioning and floor heating, comfort is guaranteed year-round. Additional amenities include a concierge service, auto-lock entry, and bicycle parking, enhancing your living experience. Located just a short walk from Tsukishima Station on the Yurakucho Line, commuting is effortless, with Kachidoki Sta...
Listed by Tokyo Portfolio • Acting as intermediary
Listing updated: 2026-04-07
Around This Property
Tsukishima
1 min walk
- Yurakucho
Kachidoki
10 min walk
- Oedo
Floor Plans & Monthly Fees

¥360,000
Priceper month
Including management fee (¥0)¥0
•
Insurance (¥0)
2
Beds
1
Baths
57.03
m²
*This is just a guide and may not accurately reflect what the total upfront fees will be. Some management companies will have other unique fees not accounted for here. We will always explain the full breakdown of upfront costs.
**If you have pets and this is a pet friendly property, expect to pay at least one additional month in security deposit.

This property is listed by Tokyo Portfolio.
Phone: +81 (0)3-5447-8700
Address: 5-15-12 Minami-azabu, Minato-ku, Tokyo
License number: Governor of Tokyo License (1) No. 107013 / Member of the Ibaraki Prefecture Chapter of the All Japan Real Estate Association / Member of the Tokyo Metropolitan Area Real Estate Fair Trading Council










