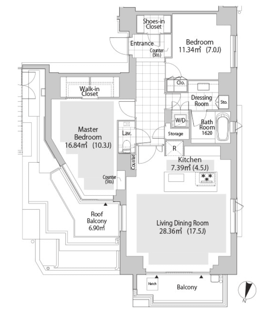
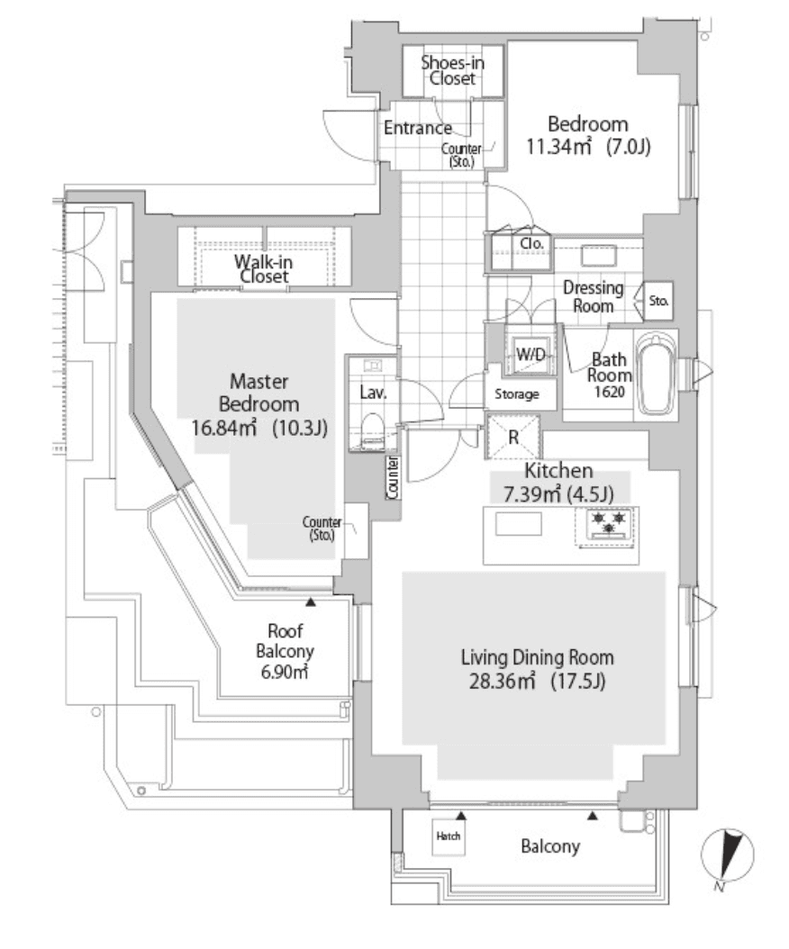
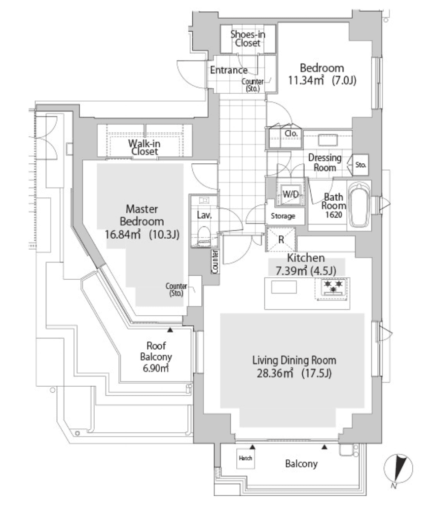
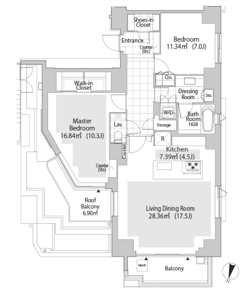
Welcome to unit 901 at Park Flats Shibuya Kamiyachou, a spacious 2LDK condo that redefines urban living. Spanning 95.44 sqm, this top-floor unit offers a harmonious blend of comfort and functionality. The open layout invites natural light, creating a warm atmosphere perfect for both relaxation and entertaining. Enjoy the convenience of a separate bathroom and toilet, complete with a bidet for added luxury. A walk-in closet provides ample storage, while the balcony offers a serene space to unwind. Pet-friendly amenities and designated parking ensure that every aspect of your lifestyle is catered to. Located just a 10-minute walk from Shibuya Station, with easy access to multiple train lines, commuting is a breeze. Experience the vibrant energy of the city while enjoying the tranquility of your private retreat.
Listed by Tokyo Portfolio • Acting as intermediary
Listing updated: 2026-02-18
Around This Property
Shibuya
10 min walk
- Saikyo
- Inokashira
- Hanzomon
- Toyoko
Yoyogi-koen
7 min walk
- Chiyoda
Floor Plans & Monthly Fees

¥970,000
Priceper month
Including management fee (¥30,000)¥30,000
•
Insurance (¥0)
2
Beds
1
Baths
95.44
m²
*This is just a guide and may not accurately reflect what the total upfront fees will be. Some management companies will have other unique fees not accounted for here. We will always explain the full breakdown of upfront costs.
**If you have pets and this is a pet friendly property, expect to pay at least one additional month in security deposit.

This property is listed by Tokyo Portfolio.
Phone: +81 (0)3-5447-8700
Address: 5-15-12 Minami-azabu, Minato-ku, Tokyo
License number: Governor of Tokyo License (1) No. 107013 / Member of the Ibaraki Prefecture Chapter of the All Japan Real Estate Association / Member of the Tokyo Metropolitan Area Real Estate Fair Trading Council








