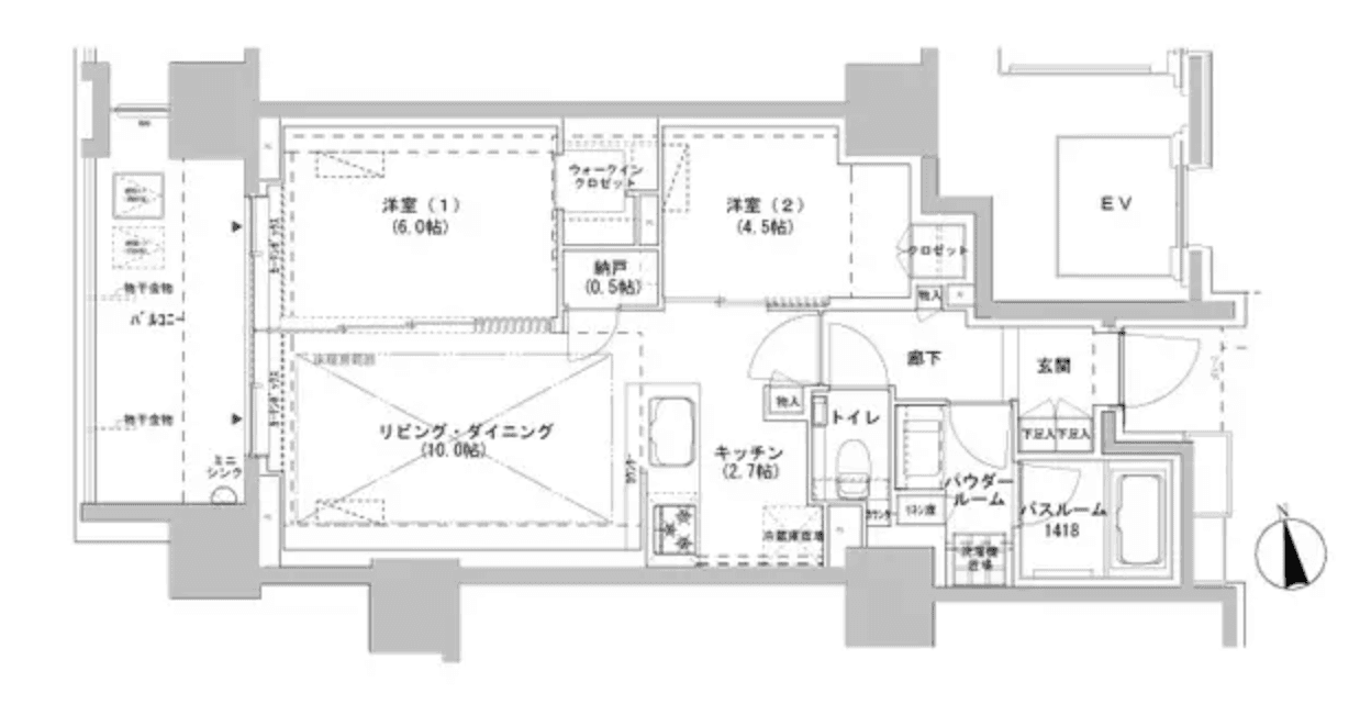
Welcome to unit 403 in Park Sphere Ushigome-Kagurazaka, a beautifully designed 2LDK condo that spans 55.6 square meters. This fourth-floor residence offers a harmonious blend of comfort and functionality, perfect for modern living. Step inside to discover a spacious layout that seamlessly connects the living, dining, and kitchen areas. The system kitchen, equipped with a dishwasher, invites culinary creativity, while the walk-in closet provides ample storage for your belongings. Enjoy the convenience of a separate washbasin and a bathroom-dryer, enhancing your daily routine. With air-conditioning and floor heating, this unit ensures year-round comfort. The balcony offers a serene outdoor space, perfect for relaxation. Additional amenities include a delivery box, bicycle parking, and a concierge service, elevating your living experience. Located just a short walk from Ushigome-yanagicho, Kagurazaka, and Ushigome-kagurazaka stations, commuting is a breeze. Embrace the ease of life in ...
Listed by Tokyo Portfolio • Acting as intermediary
Listing updated: 2026-03-12
Around This Property
Ushigome-yanagicho
5 min walk
- Oedo
Kagurazaka
10 min walk
- Tozai
Ushigome-kagurazaka
7 min walk
- Oedo
Floor Plans & Monthly Fees

¥344,000
Priceper month
Including management fee (¥15,000)¥15,000
•
Insurance (¥0)
2
Beds
1
Baths
55.6
m²
*This is just a guide and may not accurately reflect what the total upfront fees will be. Some management companies will have other unique fees not accounted for here. We will always explain the full breakdown of upfront costs.
**If you have pets and this is a pet friendly property, expect to pay at least one additional month in security deposit.

This property is listed by Tokyo Portfolio.
Phone: +81 (0)3-5447-8700
Address: 5-15-12 Minami-azabu, Minato-ku, Tokyo
License number: Governor of Tokyo License (1) No. 107013 / Member of the Ibaraki Prefecture Chapter of the All Japan Real Estate Association / Member of the Tokyo Metropolitan Area Real Estate Fair Trading Council









