






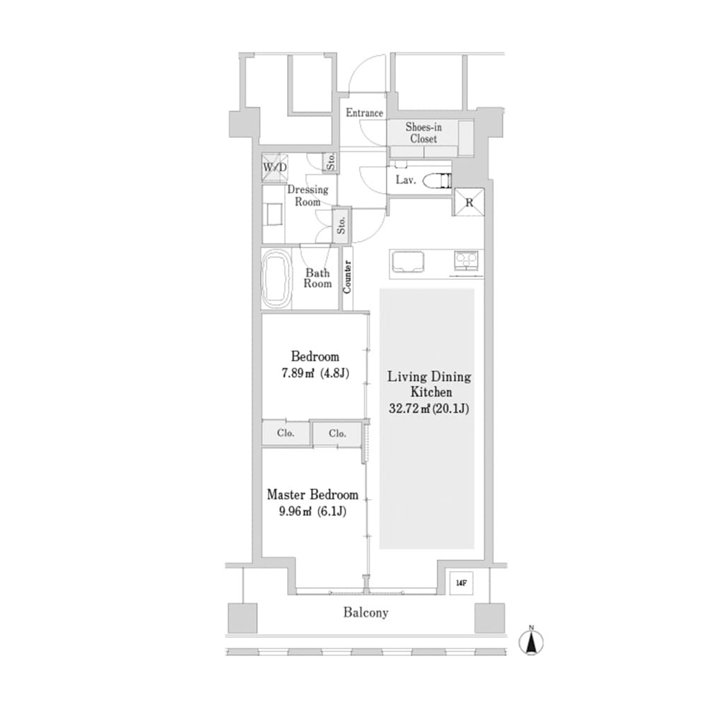
Discover refined urban living in this top-floor residence at PLATINE SHIBAKOEN—a serene 2LDK retreat offering 70.61㎡ of thoughtfully designed space. The generous living area, enhanced by radiant floor heating, invites both relaxed lounging and elegant entertaining. Large windows usher in natural light, creating a warm and open ambiance. Pet-friendly, this home also welcomes your four-legged companion into a life of comfort and style. Nestled near Shibakoen, this area blends greenery and city convenience, with Tokyo Tower, Zojoji Temple, and peaceful parks just a stroll away. Ideal for professionals or couples, it offers easy access to business hubs while maintaining a tranquil residential atmosphere.
Listed by Tokyo Portfolio • Acting as intermediary
Listing updated: 2025-05-18
Around This Property
Hamamatsucho
8 min walk
Yamanote
Keihin Tohoku Negishi
Daimon
8 min walk
- Asakusa
- Oedo
Shibakoen
6 min walk
- Mita
The British School Tokyo (Azabudai Hills)
Ages 3-18 years | By Car 9 mins by foot
Floor Plans & Monthly Fees

¥450,000
Priceper month
Including management fee (-)¥0
•
Insurance (¥0)
2
Beds
1
Baths
70.61
m²

This property is listed by Tokyo Portfolio.
Phone: +81 (0)3-5447-8700
Address: 5-15-12 Minami-azabu, Minato-ku, Tokyo
License number: Governor of Tokyo License (1) No. 107013 / Member of the Ibaraki Prefecture Chapter of the All Japan Real Estate Association / Member of the Tokyo Metropolitan Area Real Estate Fair Trading Council














