










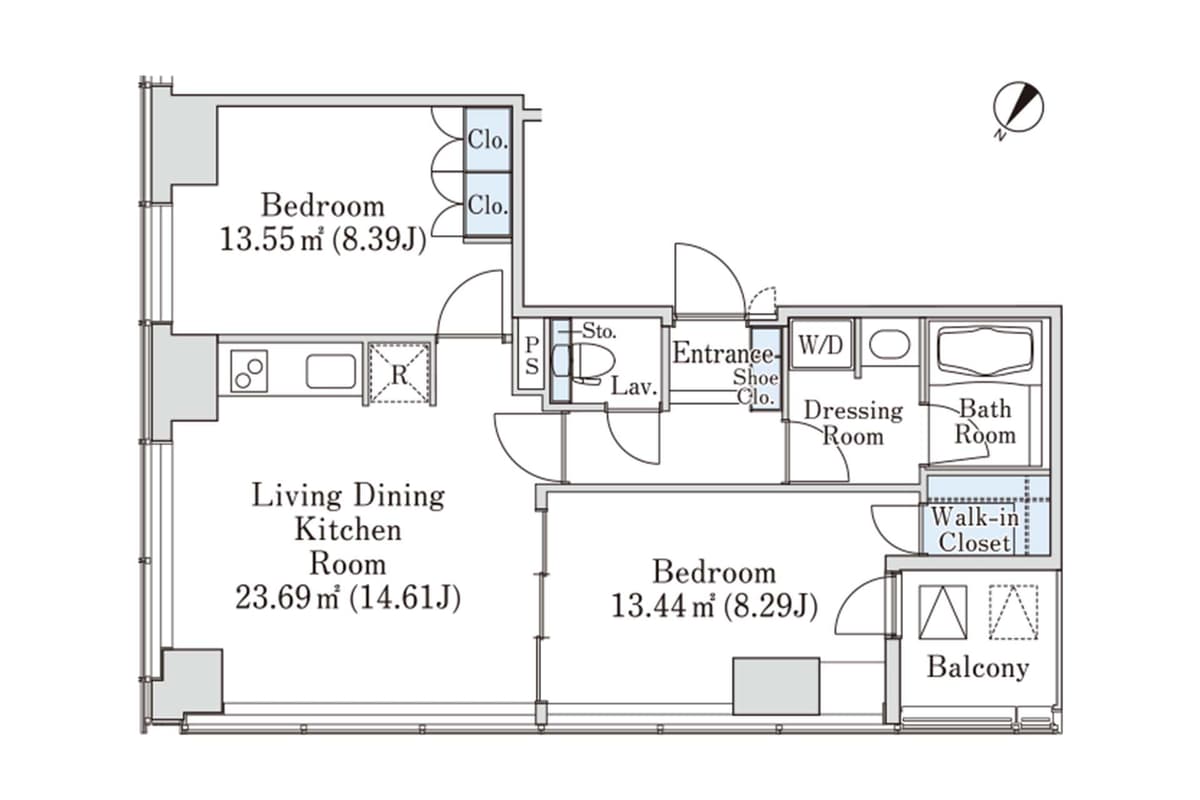
Perched in the dynamic heart of Shinjuku, this 2LDK residence at PLATINE Shinjuku Shintoshin combines modern convenience with urban sophistication across 66.1㎡ of thoughtfully designed space. Featuring secure on-site management, a pet-friendly policy, and amenities such as a trunk room, parcel lockers, and parking, the home effortlessly balances comfort and functionality. Natural light fills the interiors, creating a warm, inviting atmosphere perfect for relaxation or entertaining. Located just minutes from Shinjuku Station and accessible via four nearby stations, the neighborhood thrives with shopping, dining, and cultural experiences. Ideal for professionals, couples, or small families, it offers both connectivity and a vibrant city lifestyle.
Listed by Tokyo Portfolio • Acting as intermediary
Listing updated: 2025-08-15
Around This Property
Tochomae
8 min walk
- Oedo
Hatsudai
8 min walk
- KeioNew
Floor Plans & Monthly Fees

¥399,000
Priceper month
Including management fee (-)¥0
•
Insurance (¥0)
2
Beds
1
Baths
66.1
m²

This property is listed by Tokyo Portfolio.
Phone: +81 (0)3-5447-8700
Address: 5-15-12 Minami-azabu, Minato-ku, Tokyo
License number: Governor of Tokyo License (1) No. 107013 / Member of the Ibaraki Prefecture Chapter of the All Japan Real Estate Association / Member of the Tokyo Metropolitan Area Real Estate Fair Trading Council























