







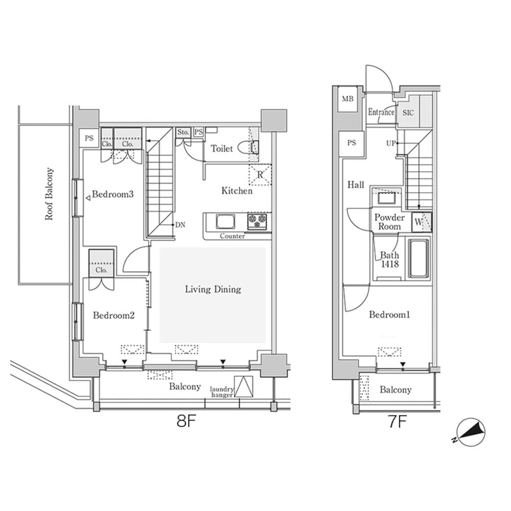
Tucked into the refined streets of Minami Aoyama, this elegant 3-bedroom maisonette at Primarilyd Minamiaoyama offers 73.53㎡ of thoughtfully layered living space. The airy LDK welcomes both quiet mornings and lively evenings, while the split-level design brings privacy and flow to daily life. Stylish finishes, ample natural light, and pet consultation make it a rare find for those seeking modern comfort with a touch of character. Minami Aoyama is one of Tokyo’s most prestigious residential enclaves, home to high-end boutiques, contemporary galleries, and leafy avenues. Ideal for professionals or families, the area blends calm sophistication with easy access to Omotesando, Roppongi, and Shibuya.
Listed by Tokyo Portfolio • Acting as intermediary
Listing updated: 2025-07-17
Around This Property
Shibuya
15 min walk
Yamanote- Saikyo Kawagoe
- ShonanShinjuku
- Inokashira
- Ginza
- Fukutoshin
- Hanzomon
- Den En Toshi
- Toyoko
Omote-sando
11 min walk
- Hanzomon
- Chiyoda
- Ginza
Floor Plans & Monthly Fees

¥450,000
Priceper month
Including management fee (-)¥0
•
Insurance (¥0)
3
Beds
1
Baths
73.53
m²

More Units in This Building

Primarilyd Minamiaoyama
2022
Built
1
Units on sale
This property is listed by Tokyo Portfolio.
Phone: +81 (0)3-5447-8700
Address: 5-15-12 Minami-azabu, Minato-ku, Tokyo
License number: Governor of Tokyo License (1) No. 107013 / Member of the Ibaraki Prefecture Chapter of the All Japan Real Estate Association / Member of the Tokyo Metropolitan Area Real Estate Fair Trading Council






















