





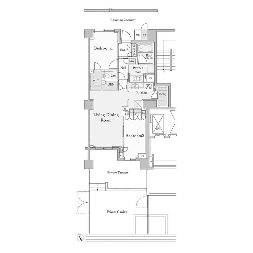
Tucked away in the refined elegance of Proud Ebisu, this 2-bedroom residence blends privacy, comfort, and quiet luxury. With 67.23㎡ of intelligently designed space, the unit includes a sunlit private terrace and exclusive garden—perfect for alfresco breakfasts or peaceful evening unwinding. A sleek system kitchen with a dishwasher and disposer, underfloor heating, and a dedicated DEN space support a sophisticated, functional lifestyle. Premium touches include walk-in closets, a serene bath with reheating and drying systems, and 24-hour security for peace of mind. Set in a tranquil Ebisu neighborhood, the area is ideal for couples or professionals seeking convenience and calm. Ebisu’s famed dining scene, boutique shops, and walkability make daily life a joy. With quick access to central Tokyo and serene, tree-lined streets at your doorstep, this home offers the perfect urban sanctuary.
Listed by Tokyo Portfolio • Acting as intermediary
Listing updated: 2025-05-11
Around This Property
Ebisu
7 min walk
- ShonanShinjuku
Yamanote- Saikyo Kawagoe
- Hibiya
Floor Plans & Monthly Fees

¥450,000
Priceper month
Including management fee (-)¥0
•
Insurance (¥0)
2
Beds
1
Baths
67.23
m²

This property is listed by Tokyo Portfolio.
Phone: +81 (0)3-5447-8700
Address: 5-15-12 Minami-azabu, Minato-ku, Tokyo
License number: Governor of Tokyo License (1) No. 107013 / Member of the Ibaraki Prefecture Chapter of the All Japan Real Estate Association / Member of the Tokyo Metropolitan Area Real Estate Fair Trading Council














