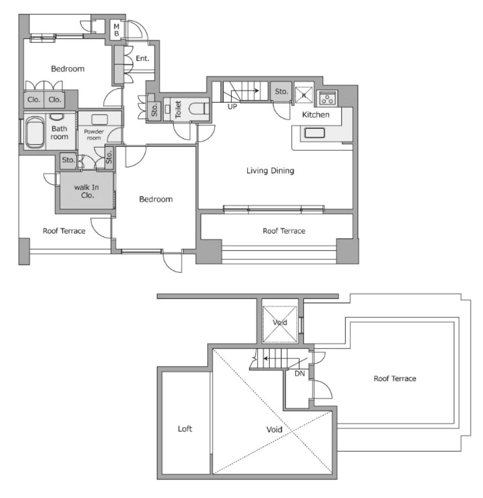
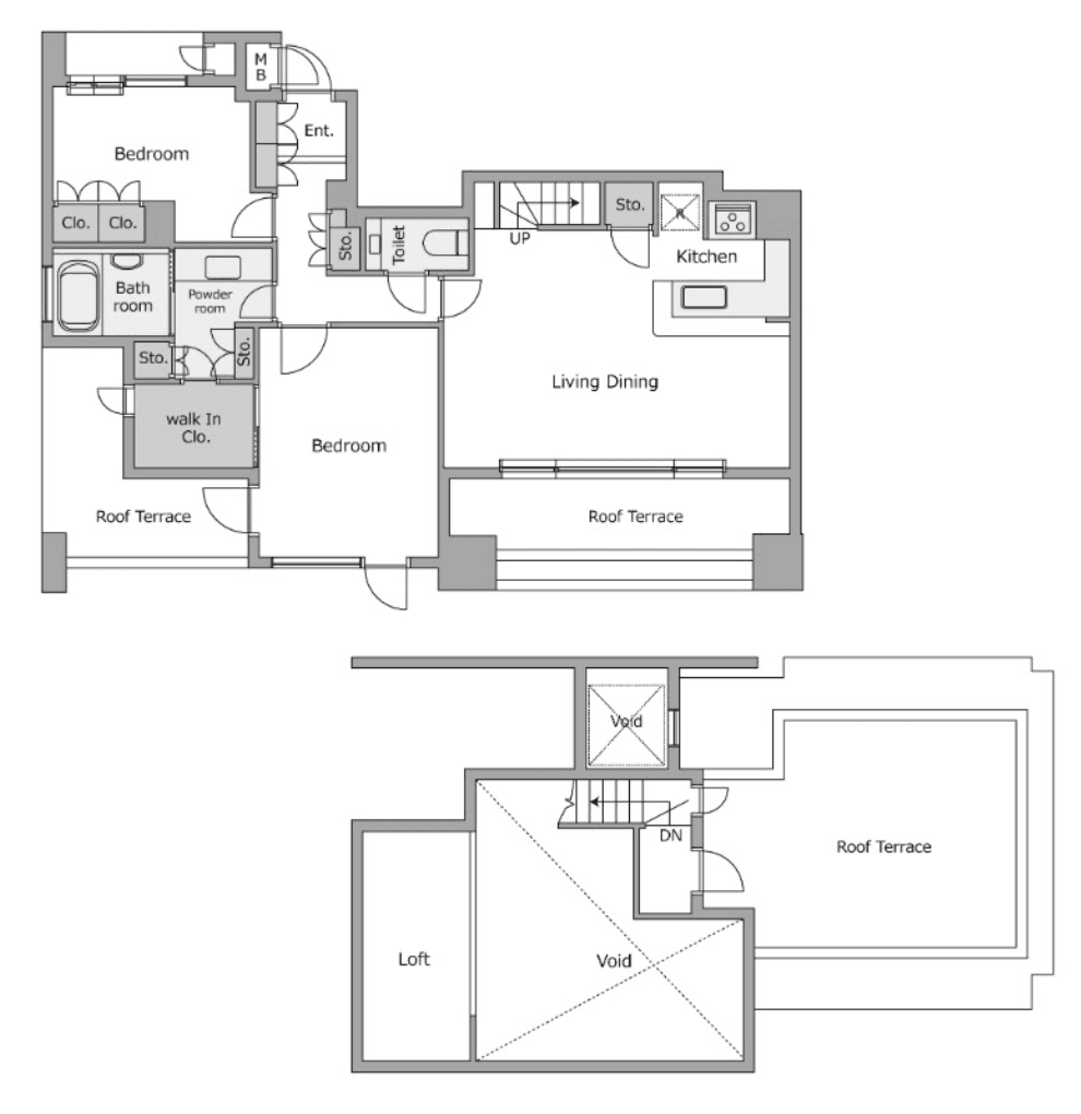
Welcome to Unit 801, a stunning top-floor apartment that offers 85.83 sqm of thoughtfully designed living space. Priced at ¥620,000, this unit combines comfort and functionality, making it an ideal home for modern living. Step inside to discover a spacious layout that seamlessly blends style and practicality. The walk-in closet provides ample storage, while the separate bathroom and toilet enhance privacy and convenience. Enjoy the luxury of a bidet toilet, adding a touch of sophistication to your daily routine. The inviting balcony offers a perfect spot to unwind, allowing you to savor the views and fresh air. With pet-friendly policies, your furry companions are welcome to share this beautiful space with you. Experience the comfort and convenience of Unit 801, where every detail supports a vibrant lifestyle.
Listed by Tokyo Portfolio • Acting as intermediary
Listing updated: 2026-02-18
Around This Property
Shibuya
5 min walk
- Saikyo
- Inokashira
- Hanzomon
- Toyoko
Daikan-yama
9 min walk
- Toyoko
Floor Plans & Monthly Fees

¥620,000
Priceper month
Including management fee (¥25,000)¥25,000
•
Insurance (¥0)
2
Beds
1
Baths
85.83
m²
*This is just a guide and may not accurately reflect what the total upfront fees will be. Some management companies will have other unique fees not accounted for here. We will always explain the full breakdown of upfront costs.
**If you have pets and this is a pet friendly property, expect to pay at least one additional month in security deposit.

This property is listed by Tokyo Portfolio.
Phone: +81 (0)3-5447-8700
Address: 5-15-12 Minami-azabu, Minato-ku, Tokyo
License number: Governor of Tokyo License (1) No. 107013 / Member of the Ibaraki Prefecture Chapter of the All Japan Real Estate Association / Member of the Tokyo Metropolitan Area Real Estate Fair Trading Council







