












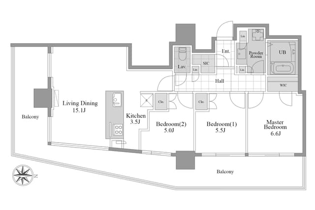
Experience modern living in the heart of Tokyo with this spacious 2LDK apartment. Located just an 8-minute walk from Gaiemmae Station, you’ll enjoy both convenience and accessibility. With a generous area of 56.76 square meters, this residence features a contemporary design, warm wooden interiors, and state-of-the-art appliances. The building boasts fantastic amenities, including a communal area, maintenance staff, and close proximity to shopping and dining options. Perfect for families or professionals, this apartment is ready to welcome you home. Don't miss the chance to make this stylish space your own!
Listed by Tokyo Portfolio • Acting as intermediary
Listing updated: 2026-01-08
Around This Property
Gaiemmae
8 min walk
- Ginza
Kokuritsu-kyogijo
10 min walk
- Oedo
Aoyama Junior High School Test
Ages 3-5 Years old Test | Walk 9 mins by foot
Floor Plans & Monthly Fees

¥474,000
Priceper month
Including management fee (-)¥0
•
Insurance (¥0)
2
Beds
1
Baths
56.76
m²

More Units in This Building

THE COURT JINGUGAIEN
2020
Built
1
Units on sale
This property is listed by Tokyo Portfolio.
Phone: +81 (0)3-5447-8700
Address: 5-15-12 Minami-azabu, Minato-ku, Tokyo
License number: Governor of Tokyo License (1) No. 107013 / Member of the Ibaraki Prefecture Chapter of the All Japan Real Estate Association / Member of the Tokyo Metropolitan Area Real Estate Fair Trading Council

































