




















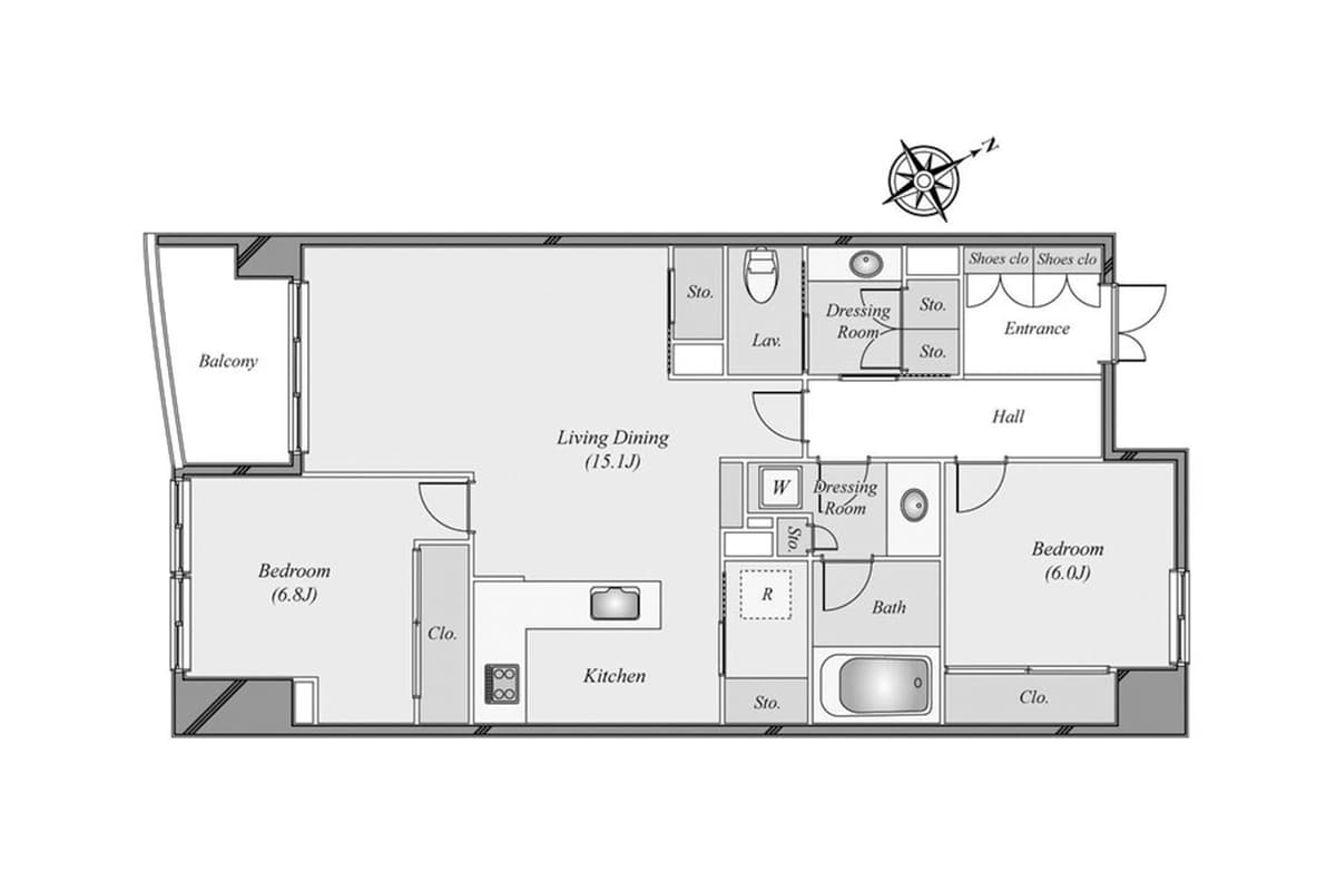
In the heart of Minami-Aoyama 5-chome, this refined 2LDK residence at The Upper Residences blends elegance with modern comfort. Spanning 86.93㎡, the home features a spacious living area warmed by floor heating, while the open kitchen with dishwasher, water purifier, and four-burner IH range makes entertaining effortless. Every room is climate-controlled, and the serene bath offers reheating and drying functions for daily convenience. Just a six-minute walk to Omotesando Station, this coveted neighborhood is synonymous with sophistication. With designer boutiques, acclaimed restaurants, and tree-lined avenues, Minami-Aoyama attracts creative professionals, couples, and families seeking both cultural vibrancy and residential tranquility.
Listed by Tokyo Portfolio • Acting as intermediary
Listing updated: 2025-09-11
Around This Property
Omote-sando
6 min walk
- Chiyoda
- Hanzomon
- Ginza
Clarence International School (Omotesando)
Ages 1-6 years | Walk 6 mins by foot
Floor Plans & Monthly Fees

¥690,000
Priceper month
Including management fee (-)¥0
•
Insurance (¥0)
2
Beds
1
Baths
86.93
m²

More Units in This Building

The Upper Residences at Minami-aoyama
1992
Built
2
Units on sale
This property is listed by Tokyo Portfolio.
Phone: +81 (0)3-5447-8700
Address: 5-15-12 Minami-azabu, Minato-ku, Tokyo
License number: Governor of Tokyo License (1) No. 107013 / Member of the Ibaraki Prefecture Chapter of the All Japan Real Estate Association / Member of the Tokyo Metropolitan Area Real Estate Fair Trading Council


























