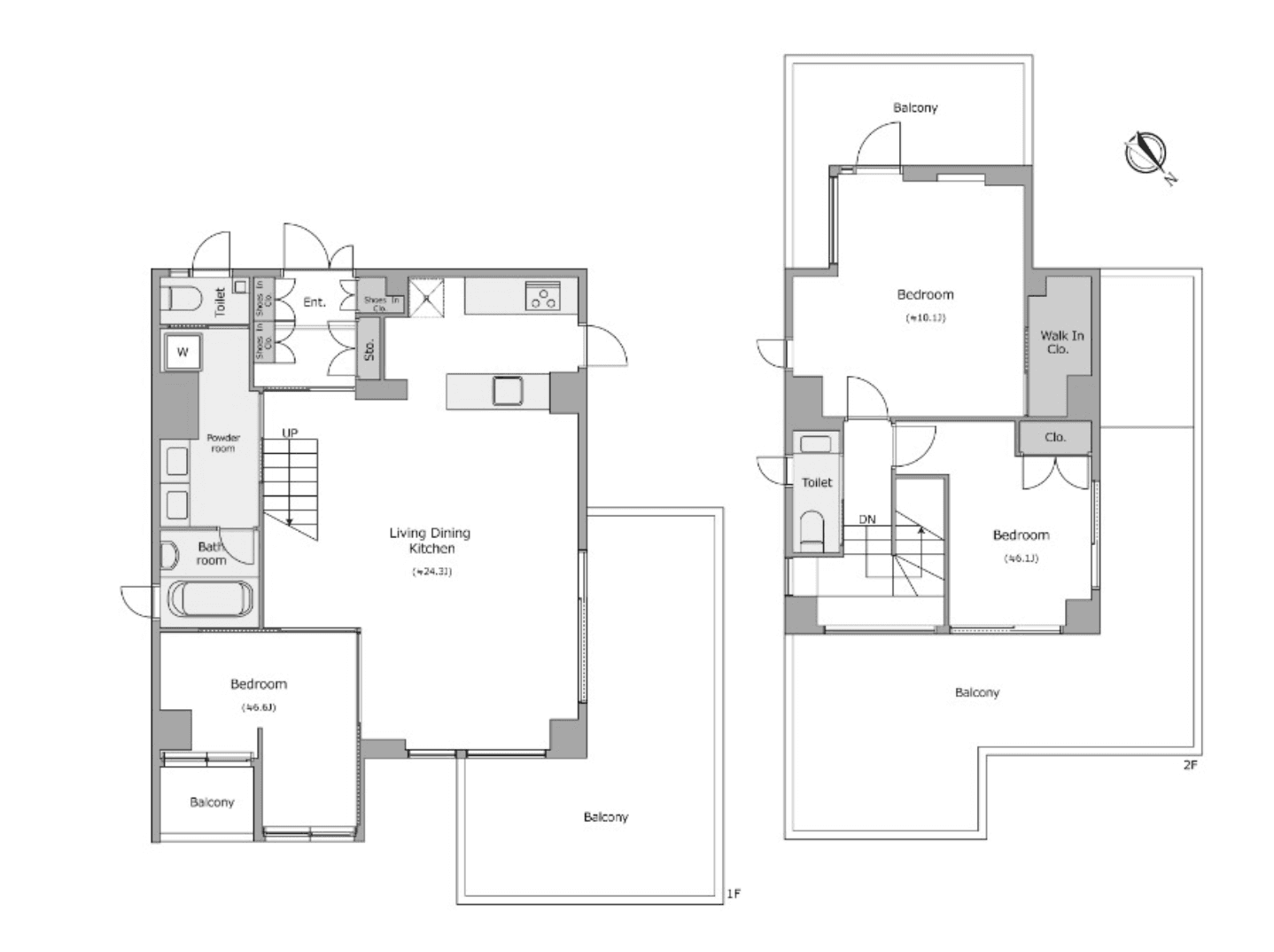
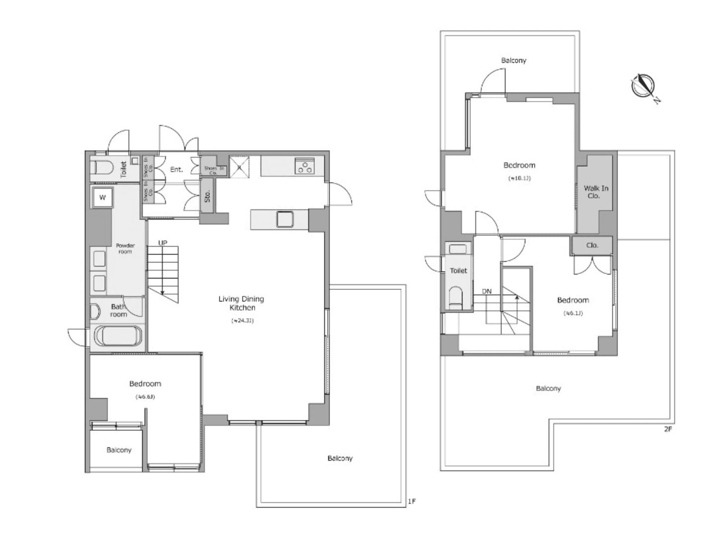
Welcome to Urban Park Yoyogi, where comfort meets functionality in unit 701. This spacious 3LDK condo spans 112.36 sqm, offering a perfect blend of modern living and thoughtful design. As you step inside, you will appreciate the open layout that seamlessly connects the living, dining, and kitchen areas, creating an inviting atmosphere for both relaxation and entertaining. The well-equipped kitchen features a dishwasher, making daily chores effortless. Retreat to the generous walk-in closet, providing ample storage for your belongings. The separate bathroom and toilet ensure privacy and convenience, while the bidet-toilet adds a touch of luxury to your daily routine. Located on the seventh floor, this unit offers a serene escape from the bustling city below. Enjoy the peace of mind that comes with an autolock system, enhancing your sense of security. Experience the perfect balance of comfort and style in your new home at Urban Park Yoyogi.
Listed by Tokyo Portfolio • Acting as intermediary
Listing updated: 2026-02-18
Around This Property
Floor Plans & Monthly Fees

¥1,000,000
Priceper month
Including management fee (¥0)¥0
•
Insurance (¥0)
3
Beds
1
Baths
112.36
m²
*This is just a guide and may not accurately reflect what the total upfront fees will be. Some management companies will have other unique fees not accounted for here. We will always explain the full breakdown of upfront costs.
**If you have pets and this is a pet friendly property, expect to pay at least one additional month in security deposit.

This property is listed by Tokyo Portfolio.
Phone: +81 (0)3-5447-8700
Address: 5-15-12 Minami-azabu, Minato-ku, Tokyo
License number: Governor of Tokyo License (1) No. 107013 / Member of the Ibaraki Prefecture Chapter of the All Japan Real Estate Association / Member of the Tokyo Metropolitan Area Real Estate Fair Trading Council








